Contactar con el anunciante

Esta vivienda se ha encontrado fuera de nuestra red. A través del botón de abajo irás directamente a la página web del anunciante.

New

Para alquilar: Apartementos Jan Tooropstraat en Amsterdam

Show on map
1061 AE (Overtoomse Veld)
2.700 € al mes
  • 120 m²
  • 5 habitaciones
  • Semi amueblado

Descripción

Este lujoso y espacioso apartamento de 5 habitaciones se encuentra en el sexto piso (el último piso) de un cómodo complejo de nueva construcción equipado con ascensor y un patio interior compartido. La propiedad es muy atractiva y tiene una excelente ubicación: ¡en 10 minutos en bicicleta estás en el corazón de Ámsterdam! Además, está idealmente situado en relación con la autopista A10, Schiphol, la Zuidas, el transporte público y varios parques.

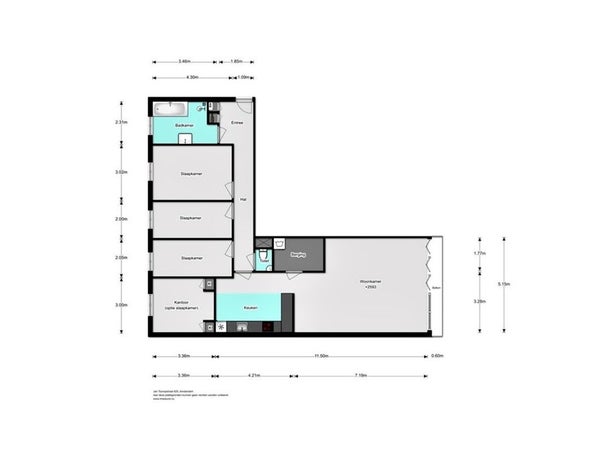
Distribución: Entrada central con acceso al apartamento en el sexto piso mediante ascensor. Hermoso pasillo con acceso a todas las habitaciones. En primer lugar, acceso al moderno baño equipado con bañera, ducha separada y un mueble lavabo. Aseo separado con lavabo. Tres dormitorios de tamaño completo, uno de los cuales está amueblado como vestidor en las fotos. Encantadora puerta de acero que da acceso a la espaciosa sala de estar con cocina abierta. Desde la sala de estar, acceso a un encantador balcón orientado al oeste. La cocina está equipada con varios electrodomésticos integrados, incluido un refrigerador y un gran congelador, placa de inducción con campana extractora, lavavajillas, horno, microondas combinado y un Quooker. Desde la cocina, también hay acceso al comedor a través de puertas correderas. Este espacio también puede funcionar bien como oficina/estudio. Además, desde la cocina, hay acceso a un amplio trastero/lavadero. En el sótano, hay un almacenamiento de bicicletas comunitario cubierto disponible.

A poca distancia, encontrará el metro, tranvía y varias conexiones de autobuses. Además, a solo unos minutos a pie se encuentran el Rembrandtpark y el Sloterplas para el ocio. También se pueden encontrar varias tiendas y restaurantes en las inmediaciones.

En resumen, un apartamento espacioso y prácticamente distribuido en una gran ubicación.

Es posible alquilar un plaza de aparcamiento en el garaje subterráneo.

Detalles:
• Tamaño de la propiedad: 120 m2
• Número de dormitorios: 3 dormitorios + 1 dormitorio adicional contiguo a la cocina
• Número de baños: 1
• Tipo de casa: Apartamento
• Año de construcción de la casa: 2006
• Decoración interior: Semi-amueblada
• Suelos: Laminado
• Calidad del transporte público: Buena

También en esta vivienda en alquiler:
• Opcionalmente es posible un espacio de garaje por un costo adicional de 100 € al mes
• Ducha separada
• Bañera
• Aseo separado
• Ascensor
• Almacenamiento: box
• 6º piso
• Etiqueta energética: A
• Balcón (orientado al suroeste)

Electrodomésticos:
• Refrigerador: Disponible
• Congelador: Disponible
• Lavavajillas: Disponible
• Horno: Disponible
• Microondas: Disponible
• Lavadora: No disponible
• Secadora: No disponible

Condiciones:
• Se permiten mascotas
• Compartir permitido para dos personas que trabajen profesionalmente
• No hay garantías, el inquilino debe poder pagar el alquiler por sí mismo
• No se permite fumar
• Se permiten niños
• Mediciones no conformes con NEN 2580
• Tipo de contrato de alquiler: modelo C para largo plazo

El precio de alquiler de esta casa es exclusivo de Gas/Electricidad/Agua, TV/Internet y impuestos locales.

Transfer

Precio de alquiler
€ 2.700 al mes
Precio por m²
€ 22
Ofrecido desde
17-03-2026
Estado
Para alquilar
Disponible
Inmediatamente
Depósito
€ 5.400
Interior
Semi amueblado
Estado de mantenimiento
Excelente

Superficie y capacidad

Espacio habitable
120 m²
Tamaño
120 m²
Contenido
400 m³

Construcción

Tipo de casa
Piso
Tipo de casa
Piso superior, Apartamento
Tipo de construcción
Edificio existente
Año de construcción
2006

Clasificación

Número de habitaciones
5
Número de dormitorios
4
Número de baños
1
Número de pisos
1
Planta
6
Instalaciones
  • Bañera
  • Ascensor
  • Ducha
  • Inodoro

Espacio exterior

Balcón
Presente
Terraza en la azotea
No presente

Espacio de almacenamiento

Cobertizo/Almacén
Presente

Instalaciones de aparcamiento

Presente
Tipo de aparcamiento
Garaje

Garaje

Presente
No
Reportar un problema