Contactar con el anunciante

Esta vivienda se ha encontrado fuera de nuestra red. A través del botón de abajo irás directamente a la página web del anunciante.

Para alquilar: Apartementos Melkdragerhof 93 en Delfgauw

Show on map
2645 LM (Emerald Zuid)
1.965 € por mes
  • 80 m²
  • 3 habitaciones
  • Amueblado

Descripción

¿Está interesado en alquilar esta propiedad? Le pedimos que responda a través de Funda, Pararius o ******. Después recibirá un correo electrónico de confirmación con un formulario que debe completar. Si es seleccionado para la visita, recibirá una invitación de nuestra parte. Después de la visita, también debe hacernos saber por correo electrónico si realmente está interesado en alquilar la casa. Presentaremos su solicitud al propietario. Si no ha recibido noticias de nuestra parte después de 3 días hábiles, lamentablemente no ha sido seleccionado para la ronda de visitas.

Apartamento de 3 habitaciones amueblado situado en el distrito Emerald, bien mantenido, recientemente pintado y ubicado en el segundo piso (ascensor disponible). El apartamento cuenta con un invernadero/loggia cerrado orientado al oeste y una unidad de almacenamiento privada en la planta baja. Hay suficiente aparcamiento gratis disponible. La propiedad se encuentra aproximadamente a 5 minutos en bicicleta de la TU Delft, tiene una buena ubicación con respecto a las vías principales y al centro de Delft, y hay un centro comercial en el vecindario. El sistema de recuperación de calor y la calefacción central fueron reemplazados en 2021.
Alquiler de € 1.965,- al mes excluyendo G/W/E/TV e Internet. Disponible: 2 de abril de 2026.

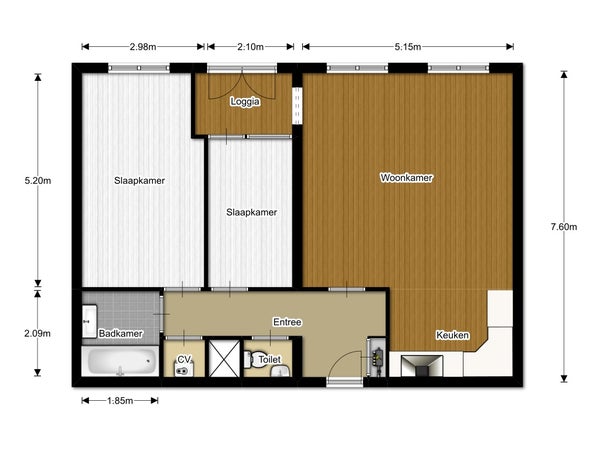
Distribución:
Planta baja: hall central con escalera, ascensor (de mudanza) y acceso a la unidad de almacenamiento.
Segundo piso: entrada del apartamento, pasillo, armario de contadores (8 circuitos con disyuntor diferencial), baño con lavabo y sala de calderas con sistema de recuperación de calor. Salón luminoso y espacioso de 5.15 x 5.23 con suelo de laminado, cocina abierta de 3.00 x 2.16 con placa de cocina de cerámica de 4 fuegos, campana extractora, lavavajillas, microondas/horno y frigorífico-congelador. Dormitorio de 2.98 x 5.23 con combinación de lavadora/secadora en un armario empotrado. Invernadero/loggia interior de 2.60 x 1.50, segundo dormitorio de 2.09 x 3.68 y el baño de 1.86 x 2.06 equipado con ducha/bañera y lavabo.

Condiciones de alquiler:

  • Apto para un máximo de 1 persona (trabajadora) o una pareja, no estudiantes, se acepta una pareja de doctorado.
  • 1 mes de depósito pagadero antes del inicio del contrato de alquiler
  • El alquiler debe estar pagado antes del 1 del mes correspondiente en la cuenta del propietario
  • No se harán comentarios sobre la política de selección
  • Contrato de alquiler mínimo de 12 meses
  • Derecho de visita de 1 mes en caso de terminación del contrato
  • Mascotas solo después de acuerdo con el propietario
  • Contrato de alquiler ROZ (******)
  • No se puede fumar y no se pueden hacer cambios en la propiedad (pintura, perforación, etc.) sin el consentimiento por escrito del propietario.

Esta es una oferta de la que no se pueden obtener derechos, ya que pueden producirse cambios.

¿Está interesado en alquilar esta propiedad? Le pedimos que responda a través de Funda, Pararius o ******. Después recibirá un correo electrónico de confirmación con un formulario que debe completar. Si es seleccionado para la visita, recibirá una invitación de nuestra parte. Después de la visita, también debe hacernos saber por correo electrónico si realmente está interesado en alquilar la casa. Presentaremos su solicitud al propietario.

Si el propietario acepta, redactaremos un contrato de alquiler de acuerdo con el modelo del Consejo de Bienes Inmuebles. Le presentaremos un concepto por correo electrónico y programaremos una cita para la firma del contrato, así como una cita para la inspección de su nueva casa. Inspeccionaremos el lugar juntos y, si todo está bien, recibirá la llave.

Transfer

Precio de alquiler
€ 1.965 al mes
Precio por m²
€ 25
Ofrecido desde
23-03-2026
Estado
Para alquilar
Disponible
Desde 02-04-2026
Interior
Amueblado
Estado de mantenimiento
Bueno

Superficie y capacidad

Espacio habitable
80 m²
Contenido
200 m³

Construcción

Tipo de casa
Piso
Tipo de casa
Apartamento con porche, Apartamento
Tipo de construcción
Edificio existente
Año de construcción
2003
Ubicación
en una zona residencial

Clasificación

Número de habitaciones
3
Número de dormitorios
2
Número de pisos
1
Planta
2
Instalaciones
  • Ascensor
  • Ventilación mecánica
  • Inodoro

Espacio exterior

Balcón
No presente
Jardín
No presente
Terraza en la azotea
No presente

Energía

Aislamiento
Totalmente aislado
Calefacción
Caldera de calefacción central
Agua caliente
Caldera de calefacción central
Calificación energética
A++

Espacio de almacenamiento

Cobertizo/Almacén
Presente
Descripción
Box

Garaje

Presente
No
Reportar un problema