Contactar con el anunciante

Esta vivienda se ha encontrado fuera de nuestra red. A través del botón de abajo irás directamente a la página web del anunciante.

Para alquilar: Apartementos Prinsegracht 28 A en Den Haag

Show on map
2512 GA (Zuidwal)
2.950 € al mes
  • 125 m²
  • 4 habitaciones
  • Amueblado

Descripción

QUIERO VISITAR LA PROPIEDAD
Para visitar esta propiedad, te pedimos que respondas por correo electrónico, a través del formulario de solicitud en nuestra página web o mediante plataformas digitales como ****** y Pararius. Desafortunadamente, no es posible solicitar una visita por teléfono. ¡Haremos nuestro mejor esfuerzo para responder lo antes posible!

BIENVENIDO A LA HAYA
En el vibrante centro de La Haya se encuentra este amplio y amueblado apartamento de aproximadamente 125 m², distribuido en 2 plantas, con una hermosa terraza en la azotea orientada al sur. La propiedad cuenta con un amplio salón/comedor con hermosos techos altos y mucha luz natural gracias a las grandes ventanas. Además, hay tres dormitorios, una gran cocina moderna y un lujoso baño. Se incluye una plaza de aparcamiento fija en un terreno cercano. ¡Aquí vivirás cómodamente y disfrutarás de todo lo que la ciudad tiene para ofrecer!

BARRIO - Centro
Ubicado en el bullicioso y versátil centro de La Haya. Este barrio es conocido por lugares icónicos como el Binnenhof, el Hofvijver, el Palacio Noordeinde y los Establos Reales. Aquí encontrarás una amplia gama de tiendas, restaurantes, locales de ocio, instituciones culturales y museos.
Las modernas edificaciones forman un impresionante horizonte urbano, mientras que la ciudad antigua, con sus edificios monumentales, avenidas majestuosas, plazas encantadoras, calles pequeñas y patios íntimos invitan a paseos interminables. El transporte público hacia la estación central y la playa está a un tiro de piedra.

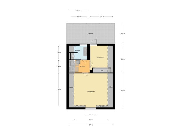
DISTRIBUCIÓN
Entrada del complejo de apartamentos a nivel de la calle con intercomunicador y buzones. Escaleras que llevan al tercer piso.

Tercer piso
Entrada del apartamento con un amplio vestíbulo. El salón amplio y acogedor es maravillosamente luminoso gracias a las grandes ventanas y techos altos. La moderna cocina está completamente equipada con varios electrodomésticos integrados, incluyendo un horno, un microondas combi, una placa de inducción, un lavavajillas y una nevera/congelador. En este piso también hay una habitación que puede servir idealmente como oficina en casa o como habitación de huéspedes, así como un baño separado con lavabo. Escaleras que llevan al segundo piso.

Cuarto piso
Aquí se encuentran dos dormitorios. El dormitorio principal te da inmediatamente una sensación de tranquilidad y confort, el segundo dormitorio también es espacioso y no está amueblado. El moderno baño está acabado de forma lujosa y cuenta con calefacción por suelo radiante, una ducha de lluvia y un segundo inodoro. También hay una lavadora y una secadora en este piso, lo que hace quetodo sea práctico y completo. La amplia terraza en la azotea orientada al sur está equipada con un cómodo juego de salón, una mesa de comedor y un toldo eléctrico. Aquí puedes disfrutar del sol en completa privacidad o relajarte después de un largo día.

AISLAMIENTO Y CALENTAMIENTO
La etiqueta energética es A. Totalmente equipado con doble acristalamiento, aislamiento de paredes y aislamiento de techos. La calefacción y el agua caliente son proporcionadas por una caldera combinada. El año de construcción del apartamento es 1750.

ESTACIONAMIENTO
Se incluye una plaza de aparcamiento fija en un terreno cercano en el alquiler y debe ser alquilada obligatoriamente.

DESTACADOS

  • Superficie habitable de aproximadamente 125 m²
  • Etiqueta energética A
  • Totalmente equipado con doble acristalamiento
  • Parcialmente amueblado
  • Cocina lujosa y ordenada con todos los electrodomésticos integrados
  • 3 dormitorios
  • Baño moderno
  • 2 inodoros
  • Lavadora y secadora disponibles
  • Amplia terraza en la azotea orientada al sur
  • Plaza de aparcamiento incluida
  • Excelente ubicación en el centro
  • No apto para estudiantes o compañeros de piso
  • Contrato por tiempo indefinido, mínimo 12 meses
  • Se permiten mascotas bajo consulta
  • No se permite fumar
  • Precio de alquiler € 2,950.00 excl. al mes
  • 1 mes de depósito
  • Disponible a partir del 1 de febrero de 2026

Descargo de responsabilidad:
La información contenida en esta presentación se ha compilado con cuidado, pero no ofrecemos garantías con respecto a la integridad, precisión o actualidad de la información proporcionada, ya que los detalles pueden cambiar. Te recomendamos verificar siempre la información más reciente directamente con las autoridades correspondientes. Agradecemos tu comprensión y estamos listos para responder cualquier pregunta que puedas tener.

Transfer

Precio de alquiler
€ 2.950 al mes
Ofrecido desde
22-01-2026
Estado
Para alquilar
Disponible
Inmediatamente
Interior
Amueblado
Estado de mantenimiento
Bueno

Superficie y capacidad

Espacio habitable
125 m²
Contenido
375 m³

Construcción

Tipo de casa
Piso
Tipo de casa
Maisonette, Apartamento
Tipo de construcción
Edificio existente
Año de construcción
1750
Ubicación
En el centro de la ciudad

Clasificación

Número de habitaciones
4
Número de dormitorios
3
Número de baños
1
Número de pisos
2
Planta
3
Instalaciones
  • Toldo exterior
  • Terraza en la azotea
  • Ducha
  • Inodoro
  • Cuarto de lavado

Espacio exterior

Balcón
No presente
Jardín
No presente
Terraza en la azotea
Presente

Energía

Aislamiento
Doble acristalamiento, Aislamiento del suelo, Aislamiento de techo, Aislamiento de pared
Calefacción
Caldera de calefacción central
Agua caliente
Caldera de calefacción central
Calificación energética
B

Instalaciones de aparcamiento

Presente
Tipo de aparcamiento
En terreno privado

Garaje

Presente
Descripción
Parkeerplaats
Reportar un problema