Contact with the rental provider

This property was found outside our own network. With the button below you will go directly to the provider.

New

For rent: Flat Julianaplein 117 in Amsterdam

Show on map
1097 DN (Frankendael)
€2,360 per month
  • 84 m²
  • 3 rooms
  • Upholstered

Description

Available as of January 1st, 2026! Spacious one bedroom apartment of aprox. 84 m2 in the newly built building AMST!

  • The pictures are from a similar apartment in the building

The apartment is located on the 6th floor and is part of the newly built AMST complex, next to the Amstel Station! AMST is fully equipped, the complex has a communal bicycle storgage and a cozy roof terrace which you can enjoy in the summer. The complex also has a Jumbo supermarket for all your groceries!

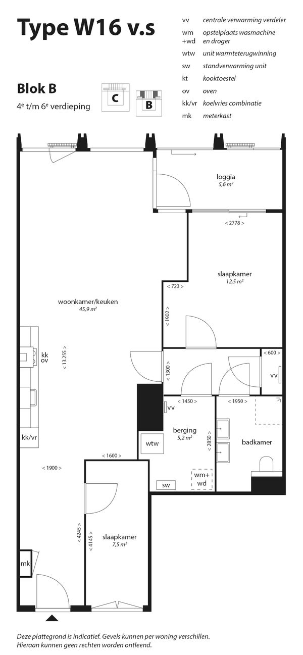
Step into your own Amsterdam apartment of approximately 84 m² and enter in the hallway. There is a walk-through to the kitchen. The beautifully finished Bruynzeel kitchen is equipped with all necassary built-in appliances. In the kitchen you will find a built-in Bosch refrigerator, dishwasher, oven, induction hob and extractor hood. In the spacious living room you can easily create a big seating area and a nice dining area. You can enjoy being outdoors on your own loggia. You can sit comfortably here every season thanks to the roof.

There are two bedrooms in the apartment, one next to the entrance and the other one is attached to the loggia. From the second hall there is access to the bathroom, a laundry room and a storage closet. Each home has an oak-look PVC floor and the walls are finished.

Location:
The location is very central to shops, supermarkets and restaurants. You will be in the center of Amsterdam within 10 minutes by bike! AMST is also located next to the Amstel Station and within a few minutes you can drive onto the A10 and A2 highways.

Particularities:

  • Available as of January 1st, 2026
  • Income requirement: single earner 3x gross monthly income (excl. holiday pay, bonus, etc.);
  • Income requirement: dual-income couples 4x gross monthly income (excl. holiday pay, bonus, etc.);
  • Deposit 2 months rent
  • Service costs €80.00 per month
  • No guarantee possible
  • No students
  • Rental agreement for an indefinite period with a minimum duration of 12 calendar months

Transfer

Rental price
€ 2.360 per month
  • Excludes: Service costs
Offered since
16-12-2025
Status
For rent
Available
From 01-01-2026
Deposit
€ 4.720
Interior
Upholstered
Upkeep
Good

Area and capacity

Living area
84 m²
Volume
227 m³

Construction

Type of house
Flat
Type of house
Gallery flat, Apartment
Type of construction
Existing building
Year of construction
2023
Location
  • In the city centre
  • Unobstructed view

Classification

Number of rooms
3
Number of bedrooms
2
Number of bathrooms
1
Number of floors
1
Facilities
  • Shower
  • Storage space
  • Toilet

Outside space

Garden
Not present
Roof terrace
Not present

Energy

Energy rating
A+++

Garage

Present
Yes
Description
Parkeerkelder
Report a problem with this property