Contact the rental provider

This property was found outside our own network. Use the button below to go directly to the provider’s website.

New

For rent: Flat Louise Wentstraat in Amsterdam

Show on map
1018 MS (Oostelijke Eilanden/Kadijken)
€2,400 per month
  • 112 m²
  • 4 rooms
  • 1990

Description

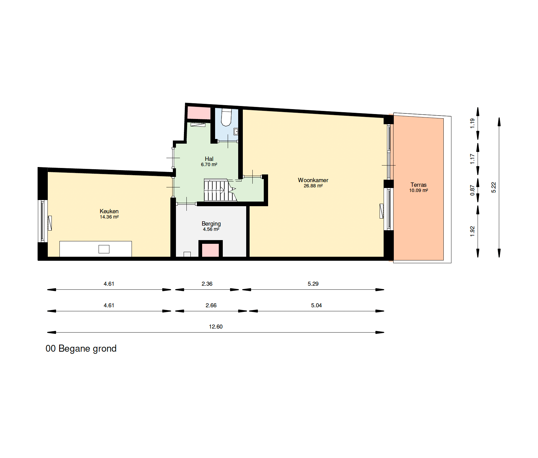
This 4-room apartment of approximately 112 m² is located on the ground and first floors, featuring a southeast-facing balcony. It is situated at the quiet rear of Sarphatistraat in central Amsterdam, near Hoogte Kadijk. Public transport is excellent, with tram and metro stops within walking distance. Entering, you find a hall, a closed kitchen at the front, and a living room at the back with terrace access. On the first floor, there are three bedrooms and a bathroom with a shower and sink. The apartment includes a storage room in the basement. The rent is € 2,400 per month, excluding gas, water, and electricity. Available immediately, with a minimum rental contract of one year.

Transfer

Rental price
€ 2.400 per month
Price per m²
€ 21
Offered since
16-03-2026
Status
For rent
Available
Immediately

Area and capacity

Living area
112 m²

Construction

Type of house
Flat
Type of house
Gallery flat
Type of construction
Existing building
Year of construction
1990

Classification

Number of rooms
4
Number of bedrooms
3
Number of bathrooms
1

Outside space

Roof terrace
Not present

Energy

Energy rating
B
Report a problem with this property