Contact with the rental provider

This property was found outside our own network. With the button below you will go directly to the provider.

For rent: Flat Gedempte Zalmhaven in Rotterdam

Show on map
3016 DT (Nieuwe Werk)
€1,995 per month
  • 87 m²
  • 2 rooms
  • Upholstered

Description

AMAZING, LUXURIOUS APARTMENT AVAILABLE LOCATED IN THE SPECTACULAR ZALMHAVEN TOWER WITH FANTASTIC VIEWS!

DE ZALMHAVEN
Living in De Zalmhaven means living with luxury and comfort, in the midst of green parks, history and culture. In De Zalmhaven you live close to the Maas and within walking distance of the city center of Rotterdam. The Zalmhaven is located in the original, authentic Scheepvaartkwartier with various boutiques, restaurants and shops within easy reach.

ACCESSIBILITY
With its central location you can reach several highways via the Erasmus Bridge, the Boompjes or the Coolsingel. You will also find metro station Leuvehaven and several tram connections in the vicinity. The Central Station can be reached in just a few stops. You can also travel by water by ferry, water bus or water taxi to Dordrecht, or Kop van Zuid on the other side of the Maas, where the popular Foodhallen and Hotel New York are located.

LAYOUT
Entry into the complex through a spacious hall with a luxurious look and marble elements. In the central entrance you will find the mailboxes, the stairwell and the elevators. Your private storage room is also accessible from this area.

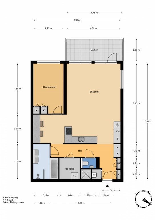
13th floor
The entire apartment has a modern PVC herringbone floor. You enter the spacious hall, which provides access to the spacious bedroom, the living room, the separate toilet, the luxurious bathroom, spacious laundry/storage space and the meter cupboard.

The very bright living room offers a fantastic view of the Maas, the SS and the city side. From the living room there is access to the spacious balcony of 10m2. The perfect place to enjoy both sunrise and sunset outdoors.

The very modern open kitchen is equipped with various built-in appliances such as a double oven, dishwasher, induction hob and fridge with separate spacious freezer. The kitchen also has a lovely breakfast bar.
Behind the kitchen, a beautiful spacious workplace has been created with a spacious desk and additional storage space.

The bedroom again offers a view of the Maas and offers enough space for a double king size bed. There is already a built-in wardrobe present.
The adjacent modern bathroom has a spacious bath, walk-in shower and double sink with furniture and mirror.
Both the separate toilet with sink as the internal storage room are accessible from the hall.

In short: A fantastic apartment with a luxurious appearance, located in a prime location!

COMMENTS:

  • The rent is exclusive of heating, water, electricity, television/internet and municipal taxes;
  • The minimum rental period is 12 months;
  • Servicecosts are €100,00 per month;
  • Advanced payment for heating of €120,00 per month;
  • Energy label A++
  • Spacious balcony
  • Private storage present in complex;
  • A parking space is not available in the complex. However, you can inquire about a place in one of the surrounding parking garages;

Transfer

Rental price
€ 1.995 per month
Offered since
05-01-2026
Status
For rent
Available
In consultation
Deposit
€ 2.095
Interior
Upholstered
Upkeep
Excellent

Area and capacity

Living area
87 m²
Plot area
83 m²
Volume
216 m³

Construction

Type of house
Flat
Type of house
Upper floor, Apartment
Type of construction
Existing building
Year of construction
2021
Location
  • In the city centre
  • Near public transportation

Classification

Number of rooms
2
Number of bedrooms
1
Number of bathrooms
1
Number of floors
1
Floor
13
Facilities
  • Cable TV
  • Lift
  • Mechanical ventilation
  • Toilet
  • Laundry room

Outside space

Balcony
Present
Roof terrace
Not present

Energy

Heating
Complete floor heating
Energy rating
A++

Parking facilities

Present
Yes
Type of parking
Paid
Report a problem with this property