Contact with the rental provider

This property was found outside our own network. With the button below you will go directly to the provider.

For rent: Flat Diogenesstraat in Rotterdam

Show on map
3076 AC (Lombardijen)
€999 per month
  • 70 m²
  • 4 rooms
  • 1962

Description

Available from February 1: 4-room apartment on Diogenesstraat, Rotterdam

Are you looking for a nice living space in the Rotterdam area? Then this apartment on Diogenesstraat is for you!

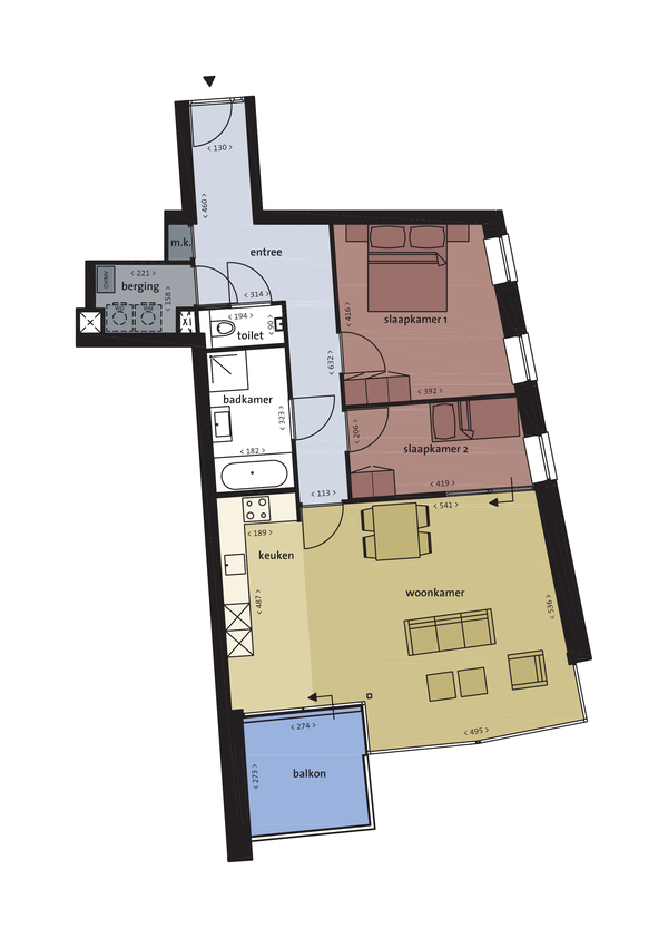
It features a living room, a kitchen, 3 bedrooms, and a bathroom with shower, toilet, and sink. Thanks to the smart layout, the space is optimally used.

Features:

Living area: 70 m²

Base rent: ****** euros

Deposit: 1x base rent

Service charges: 27 euros per month

Advance heating costs: 150 euros per month

Central location, near all amenities

Available from January 1

Not furnished

Not finished

Respond in time to new rental listings

More than half of all responses arrive within 48 hours. Get instant notifications for new listings and respond faster with Pararius+

Try Pararius+ for 14 days for €0.01

Transfer

Rental price
€ 999 per month
Offered since
19-11-2025
Status
For rent
Available
From 01-02-2026
Upkeep
Good

Area and capacity

Living area
70 m²
Volume
210 m³

Construction

Type of house
Flat
Type of house
Ground floor
Type of construction
Existing building
Year of construction
1962

Classification

Number of rooms
4
Number of bedrooms
3
Number of floors
1

Outside space

Balcony
Not present
Garden
Not present
Roof terrace
Not present

Energy

Energy rating
B

Garage

Present
No
Report a problem with this property