Advertisement archived

For rent: Flat Staringkade in Voorburg

Show on map
2273 RN (Bovenveen midden)
€1,550 per month
  • 62 m²
  • 4 rooms
  • Upholstered

Description

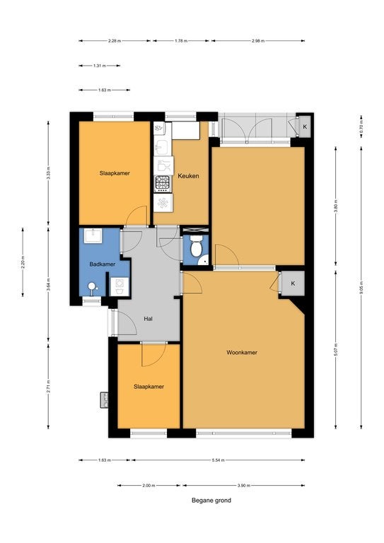
This beautifully located 4-room ground-floor apartment offers views over the quay along with a backyard and a small front garden. The location is ideal, just around the corner from public transport and shops. The modern kitchen, bathroom, and toilet are bright and functional. The apartment features its own central heating boiler and a shed in the backyard. A recently replaced sliding door gives access to the garden. With a heat pump, the property is very energy-efficient (A+ label). Layout: entrance via the porch, hall, living room with oak parquet floor and a glass wall leading to the rear bedroom. There are two bedrooms and a bathroom with a walk-in shower. Rent is €1,550 per month, available from February 2026.

Similar in the surrounding area

Van Speijkstraat

2518EW Den Haag (Zeeheldenkwartier)
€1,595 pcm

Schapenlaan

2512HV Den Haag (Schildersbuurt-West)
€1,650 pcm

Emmastraat

2595EJ Den Haag (Bezuidenhout-Midden)
Price on request

Frederik Hendriklaan

2582BM Den Haag (Statenkwartier)
€1,650 pcm

Woudenbergstraat 205

2546VR Den Haag (Leyenburg)
€1,658 pcm

Vrederustlaan

2543TC Den Haag (Dreven en Gaarden)
€1,555 pcm

Koningin Julianaplein

2595AA Den Haag (Rivierenbuurt-Noord)
€1,410 pcm

Kerkstraat

2611GX Delft (Centrum)
€1,600 pcm

Barneveldstraat 9

2573WB Den Haag (Oostbroek-Zuid)
€1,406 pcm

Zeesluisweg

2583DS Den Haag (Vissershaven)
€1,685 pcm

Area and capacity

Living area
62 m²

Construction

Type of house
Flat
Type of house
Gallery flat
Type of construction
Existing building

Classification

Number of rooms
4
Number of bedrooms
3
Number of bathrooms
1

Outside space

Roof terrace
Not present