Contatta l’inserzionista

Questo immobile è stato trovato al di fuori della nostra rete. Tramite il pulsante qui sotto verrai reindirizzato direttamente al sito dell’inserzionista.

New

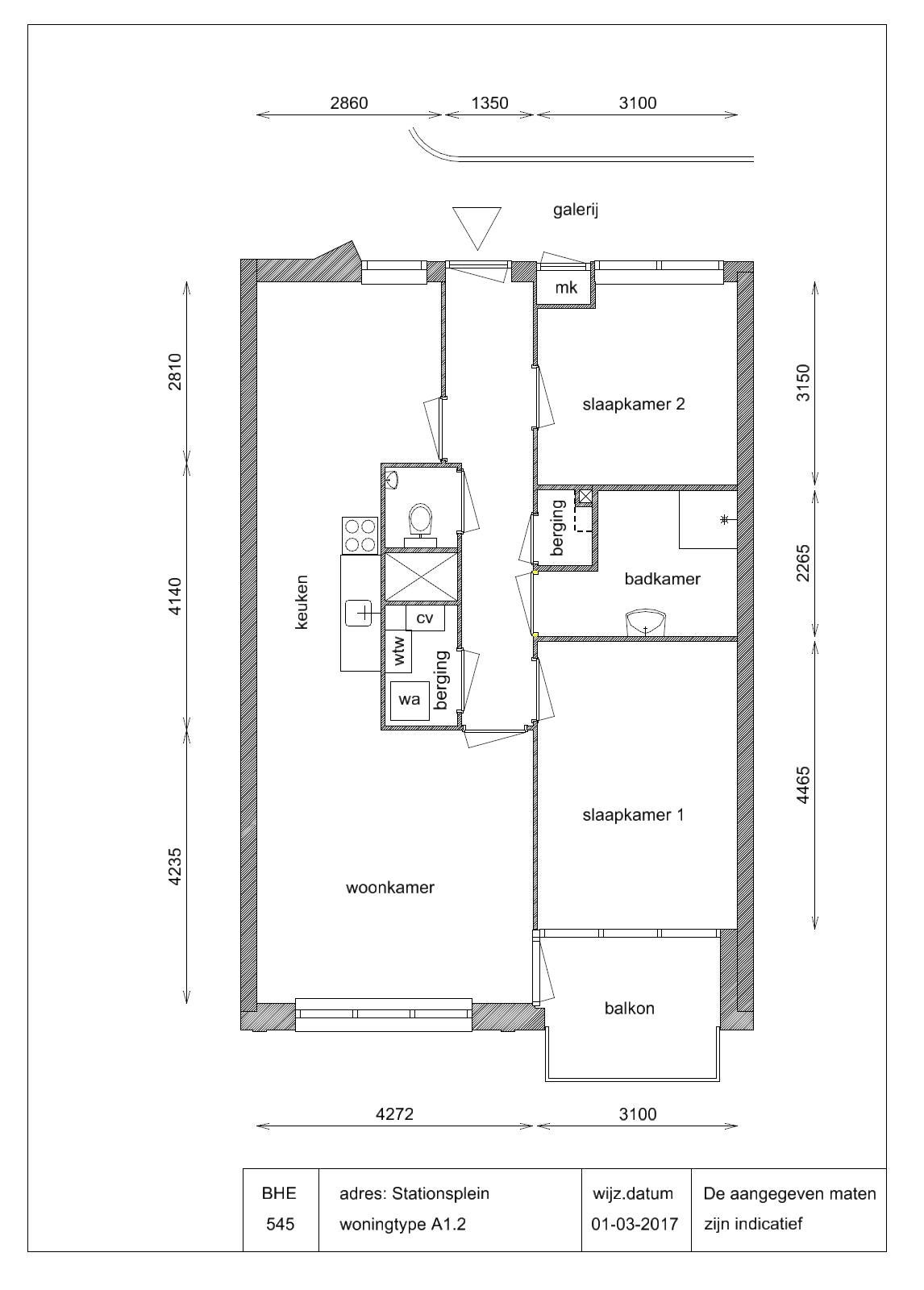
In affitto: Appartamento Stationsplein 119 in Alphen aan den Rijn

Show on map
2405 BK (Paradijslaan)
965 € al mese
  • 50 m²
  • 3 stanze
  • 2017

Descrizione

Molti stanno cercando una casa che meglio si adatti alle loro esigenze, ma attualmente è difficile. Il progetto Passend (t)huis promuove il movimento nel mercato immobiliare dando precedenza agli inquilini di case unifamiliari o maisonette che cercano alloggi al piano terra. Le famiglie che liberano appartamenti hanno la priorità per le case unifamiliari o maisonette vuote. Gli inquilini di 50 anni e oltre che lasciano un'unità Woonforte possono partecipare a questo progetto. Se il vostro reddito è inferiore a 51.537 € per le famiglie mononucleari o 56.910 € per le famiglie a due persone, potrete beneficiare di vantaggi extra. L'immobile sarà consegnato secondo le regole di base: pulito, intatto e sicuro, ma dovrete anche apportare alcune modifiche. Il nuovo complesso residenziale Toor, costruito nel 2017, si trova vicino alla stazione di Alphen aan den Rijn e ai negozi. Potreste avere la possibilità di affittare un posto auto nel garage sotterraneo per 62,00 € al mese.

Trasferimento

Prezzo di affitto
€ 965 al mese
Prezzo al m²
€ 19
In offerta dal
11-03-2026
Stato
In affitto
Disponibile
Immediatamente

Area e capacità

Zona giorno
50 m²

Costruzione

Tipo di abitazione
Appartamento
Tipo di abitazione
Appartamento con galleria
Tipo di struttura
Edificio esistente
Anno di costruzione
2017

Classificazione

Numero di stanze
3
Numero di camere da letto
2

Spazio esterno

Terrazza sul tetto
Non presente

Energia

Classe energetica
A
Segnala un problema con questa proprietà