Advertisement archived

In affitto: Appartamento Rookmelderstraat in Amsterdam

Show on map
1019 VS (Indische Buurt-Oost)
3.200 € al mese
  • 118 m²
  • 4 stanze
  • Ammobiliato

Descrizione

Appartamento di alta gamma con 4 camere in una posizione vivace ad Amsterdam-Oost.
Questa proprietà verrà consegnata completamente arredata e pronta all'uso con mobili di alta qualità selezionati da un interior designer.

POSIZIONE:
Questo appartamento di lusso è situato in Cruquiuswerf, sull'isola di Cruquiuseiland. Il complesso si trova all'angolo dell'isola con una splendida vista sul'acqua, in un luogo tranquillo ma a soli 10 minuti dal centro. Insomma, un luogo incantevole dove vivere.

Amsterdam-Oost è piena di belle strutture come i più recenti ristoranti, caffè e negozi boutique. Anche il parco Oosterpark, lo zoo ARTIS e il Museo Marittimo si trovano nelle vicinanze. Ovviamente, troverete anche vari negozi per la spesa quotidiana nelle vicinanze dell'appartamento.

C'è un'ottima connessione al centro tramite i mezzi pubblici con le linee di autobus 22 o 65 e le linee tramviarie 7 o 14. Amsterdam-Nord è anche facilmente raggiungibile con il traghetto a Azart Square. In auto, c'è una buona connessione con il Ring A10.

DISPOSIZIONE:
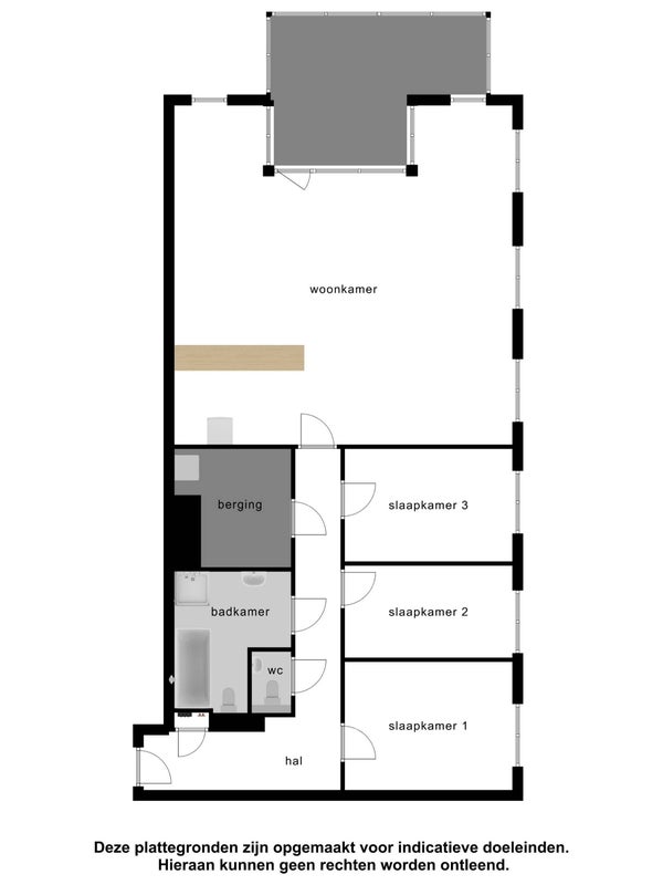
Con l'ascensore o le scale si raggiunge il 3° piano del complesso e l'ingresso dell'appartamento.
Il spazioso corridoio a forma di L vi porta lungo le 3 camere da letto, il bagno, il wc separato, un ampio ripostiglio e infine l'accesso al soggiorno con cucina a vista.

Il soggiorno ha una bella posizione aperta all'angolo del complesso. Le alte finestre con aperture a ribalta (con tende parasole elettriche!) portano molta luce all'interno. La cucina a vista SieMatic è dotata di un'isola di cottura con bar, rubinetto Quooker e piano cottura a induzione Siemens con estrazione integrata. Inoltre, la cucina è dotata di ampi spazi di stoccaggio, frigorifero-congelatore, lavastoviglie e 2 forni (a vapore) Siemens StudioLine di lusso. La spaziosa terrazza, esposta a sud, è accessibile tramite le 2 porte a battente ed offre una bella vista su molto verde e acqua (Amsterdam Rijnkanaal).

Il moderno bagno è dotato di una spaziosa doccia a piatto, piastrelle di lusso effetto marmo fino al soffitto, doppio lavabo e 2° wc.
Le camere da letto sono rispettivamente di 12,5m², 10m² e 8,5m² e sono tutte dotate di tende parasole elettriche.

Il parcheggio si trova nel tuo posto auto privato nel garage sotterraneo. Qui si trova anche il tuo ripostiglio esterno.

Per ulteriori informazioni o per prenotare una visita puoi contattare ROTSVAST Amsterdam.

Simile nell’area circostante

Simon Stevinstraat

1097CA Amsterdam (Frankendael)
3.250 € al mese

Kuipersstraat

1074EH Amsterdam (Nieuwe Pijp)
3.150 € al mese

Kattenburgerhof 34

1018KD Amsterdam (Oostelijke Eilanden/Kadijken)
3.300 € al mese

Noorderdwarsstraat

1017TX Amsterdam (De Weteringschans)
3.250 € al mese

Bercylaan 411

1031KP Amsterdam (Noordelijke IJ-oevers-West)
3.100 € al mese

Pieter Baststraat

1071TV Amsterdam (Museumkwartier)
3.350 € al mese

Sarphatipark 114 2

1073ED Amsterdam (Nieuwe Pijp)
3.200 € al mese

Plantage Doklaan

1018CM Amsterdam (Weesperbuurt/Plantage)
2.950 € al mese

Alexanderkade

1018ZC Amsterdam (Oostelijke Eilanden/Kadijken)
2.995 € al mese

Narva-eiland

1014ZJ Amsterdam (Houthavens)
3.250 € al mese

Area e capacità

Zona giorno
118 m²
Contenuto
350 m³

Costruzione

Tipo di abitazione
Appartamento
Tipo di abitazione
Piano superiore, Appartamento
Tipo di struttura
Edificio esistente
Anno di costruzione
2021
Posizione
  • Vicino a un corso d’acqua
  • In zona residenziale
  • Vicino a un trasporto pubblico
  • Vista non ostruita

Classificazione

Numero di stanze
4
Numero di camere da letto
3
Numero di bagni
1
Numero di piani
1
Piano
4
Numero di piani dell'edificio
6
Infrastrutture
  • Ascensore
  • Citofono
  • Toilette

Spazio esterno

Balcone
Presente
Giardino
Non presente
Terrazza sul tetto
Non presente

Energia

Isolamento
Completamente isolato
Riscaldamento
Pompa di calore
Classe energetica
A++

Spazio adibito a magazzino

Magazzino
Non presente

Strutture di parcheggio

Presente
Tipo di parcheggio
Su terreno privato