In affitto: Appartamento Paviljoenplein in Harderwijk
Show on map- 110 m²
- 3 stanze
- 2002
Esclusivo per te
Questa proprietà è disponibile per te tramite la tua notifica personale e non appare nei risultati di ricerca.
Descrizione
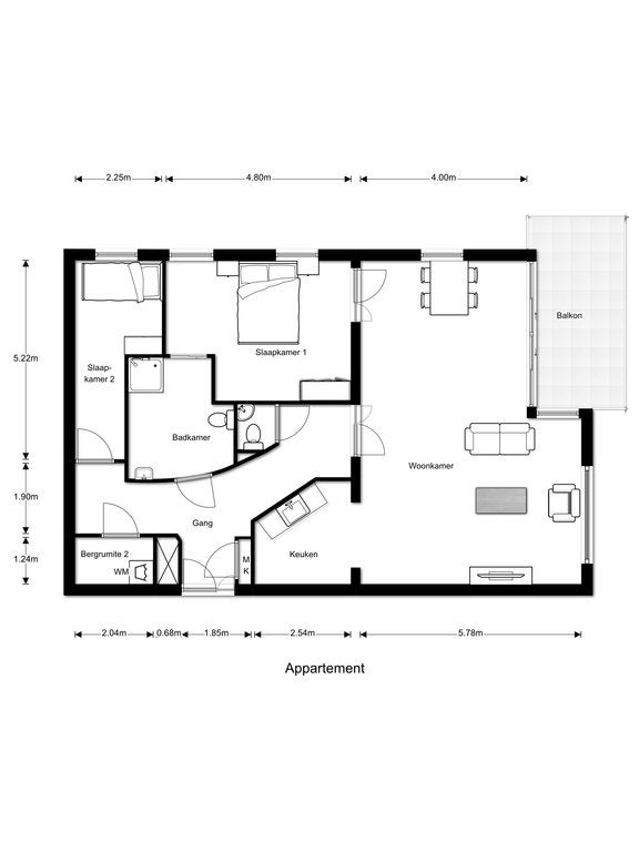
Situato nella zona boschiva di Harderwijk, il complesso residenziale "Leuvenumsehof" ospita un appartamento con 3 camere da letto di 110 m². Comprende due camere da letto e un soggiorno spazioso con accesso a un balcone. La cucina moderna è dotata di elettrodomestici incorporati, mentre il bagno ha riscaldamento a pavimento. Ogni appartamento ha un posto auto privato nella cantina e opzioni per la ricarica dei veicoli elettrici. Questo complesso è rivolto a nuclei familiari di una o due persone dai 50 anni in su, con un affitto mensile di 1.755 € e costi di servizio aggiuntivi di 145 €. La posizione offre un facile accesso e servizi, rendendolo una casa attraente.
Trasferimento
- Prezzo di affitto
-
€ 1.755 al mese
- In offerta dal
- 19-12-2025
- Stato
- In affitto
- Disponibile
- Immediatamente
Area e capacità
- Zona giorno
- 110 m²
Costruzione
- Tipo di abitazione
- Appartamento
- Tipo di abitazione
- Appartamento con galleria
- Tipo di struttura
- Edificio esistente
- Anno di costruzione
- 2002
Classificazione
- Numero di stanze
- 3
- Numero di camere da letto
- 2
- Numero di bagni
- 1
Spazio esterno
- Terrazza sul tetto
- Non presente
Energia
- Classe energetica
- A
Condizioni di affitto
- Pubblico di destinazione
- Occupato