Contact with the rental provider

This property was found outside our own network. With the button below you will go directly to the provider.

New

à louer: Appartement Oetgensstraat dans Amsterdam

Show on map
1091 RB (Weesperzijde)
2 150 € par mois
  • 88 m²
  • 4 pièces
  • 1980

Exclusif pour vous

Cette propriété est disponible pour vous via votre notification personnelle et n'apparaît pas dans les résultats de recherche.

Description

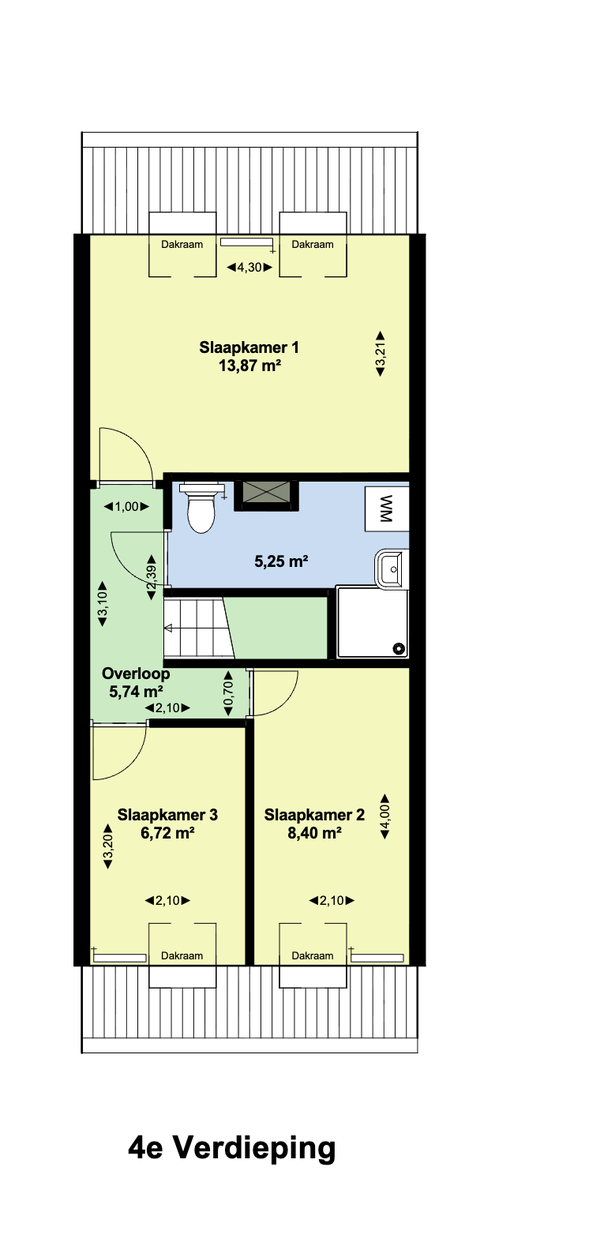
Cet appartement charmant de 4 pièces, d'environ 89m², est situé au troisième et au quatrième étage, avec une terrasse ensoleillée dans la rue Oetgensstraat animée. Cet emplacement central au cœur de l'Est est entouré de cafés, restaurants et divers magasins. Pour les loisirs, le parc Oosterpark et le Tropenmuseum sont à proximité. L'appartement comprend un salon donnant accès au balcon, une cuisine fermée et un WC séparé au troisième étage. À l'étage supérieur, deux chambres à l'avant et une à l'arrière, avec une salle de bain équipée d'une douche et d'un lavabo. Accessible par divers moyens de transport public, des options de stationnement sont disponibles. La maison est louée "en l'état" et disponible pour un maximum de deux adultes, au prix de location de 2150 € par mois et 1500 € de dépôt.

Cession

Prix de location
€ 2.150 par mois
En vente depuis
11-12-2025
Statut
À louer
Disponible
Immédiatement

Surface et contenu

Surface habitable
88 m²

Construction

Type de logement
Appartement
Type de logement
Appartement avec galerie
Type de construction
Construction existante
Année de construction
1980

Répartition

Nombre de pièces
4
Nombre de chambres
3
Nombre de salles de bains
1

Espace extérieur

Terrasse sur le toit
Pas présent

Énergie

Classe énergétique
A

Conditions de location

Groupe cible
travail
Signaler un problème