Contact with the rental provider

This property was found outside our own network. With the button below you will go directly to the provider.

New

à louer: Appartement Bulgerstein dans Amsterdam

Show on map
1082 NH (Buitenveldert-Oost)
2 132 € par mois
  • 108 m²
  • 4 pièces
  • 1985

Exclusif pour vous

Cette propriété est disponible pour vous via votre notification personnelle et n'apparaît pas dans les résultats de recherche.

Description

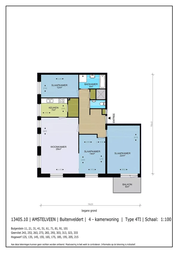
Cet appartement à Buitenveldert offre 108 m² avec trois chambres et deux balcons. Le salon lumineux d'environ 20 m² est le cœur de la maison et donne accès au premier balcon, parfait pour déguster votre café du matin. La cuisine ouverte est équipée d'appareils modernes, y compris une plaque de cuisson à induction et un four électrique. Le couloir mène aux chambres, la plus grande ayant un accès direct au deuxième balcon. La salle de bain moderne comprend une douche à l'italienne, une baignoire et un lavabo, tandis que les toilettes sont dans une pièce séparée. Une remise à l'intérieur offre de l'espace pour une machine à laver. Buitenveldert offre calme et tranquillité tout en étant proche de la Zuidas, avec des magasins et le Bos d'Amsterdam à proximité, ainsi que de bonnes connexions vers l'A10 et les transports en commun.

Cession

Prix de location
€ 2.132 par mois
En vente depuis
01-01-2026
Statut
À louer
Disponible
Immédiatement

Surface et contenu

Surface habitable
108 m²

Construction

Type de logement
Appartement
Type de logement
Appartement avec galerie
Type de construction
Construction existante
Année de construction
1985

Répartition

Nombre de pièces
4
Nombre de chambres
3
Nombre de salles de bains
1

Espace extérieur

Terrasse sur le toit
Pas présent

Énergie

Classe énergétique
C

Conditions de location

Groupe cible
travail
Signaler un problème