Contact with the rental provider

This property was found outside our own network. With the button below you will go directly to the provider.

New

à louer: Appartement Apeldoornseweg dans Arnhem

Show on map
6814 BM (St. Marten)
795 € par mois
  • 56 m²
  • 2 pièces
  • Non meublé (vide)

Description

Dans un bel appartement caractéristique, composé de 3 étages (2 appartements et 1 studio), nous avons le plaisir de proposer un appartement de 2 pièces au 2e étage à partir du 1-9-2023. Chaque étage dispose de ses propres équipements. Le bien est situé dans un endroit magnifique, en face du parc Sonsbeek et à distance de marche du centre, de la gare et des commerces.

Agencement :
Premier étage, appartement 1 :
Palier avec escalier menant au deuxième étage, cuisine. Salon en suite avec un balcon à l'avant et à l'arrière. Couloir avec toilettes, douche séparée et escalier menant à la chambre au deuxième étage dotée d'un lavabo.

Deuxième étage, appartement 2 :
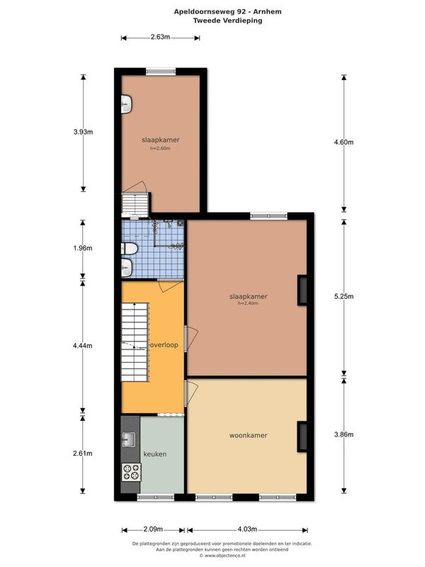
Palier avec escalier menant au troisième étage, cuisine équipée de divers appareils intégrés, salle de bain avec toilette, lavabo et douche. Salon et grande chambre.

Troisième étage, studio :
Palier avec rangement et salle de bain avec douche et toilettes. Studio avec salon, coin nuit et cuisine ouverte. Ce studio est situé sous le toit avec les fermes visibles, ce qui crée une atmosphère conviviale.

Il s'agit de l'appartement disponible au 2e étage. L'appartement mesure 55,75 m2.

Particularités :
L'avance pour le gaz/l'eau/l'électricité/les taxes municipales s'élève à 250,00 € par mois.

Cession

Prix de location
€ 795 par mois
En vente depuis
05-12-2025
Statut
À louer
Disponible
Au 01-01-2026
Contrat de location
À durée indéterminée
Durée
Nombre minimum 12 de mois
Garantie
€ 1.045
Intérieur
Non meublé (vide)

Surface et contenu

Surface habitable
56 m²
Capacité
145 m³

Construction

Type de logement
Appartement
Type de logement
Étage supérieur, Appartement
Type de construction
Construction existante
Année de construction
1910

Répartition

Nombre de pièces
2
Nombre de chambres
1
Nombre de salles de bains
1
Nombre d'étages
1

Espace extérieur

Balcon
Pas présent
Jardin
Pas présent
Terrasse sur le toit
Pas présent

Énergie

Classe énergétique
D

Espace de rangement

Cellier
Pas présent

Parking

Présent
Non

Garage

Présent
Non

Conditions de location

Permission de fumer
Non
Les animaux sont admis
Non
Signaler un problème