Contact with the rental provider

This property was found outside our own network. With the button below you will go directly to the provider.

à louer: Appartement Sint-Josephstraat dans Bergen op Zoom

Show on map
4611 ML (Centrum)
1 325 € par mois
  • 113 m²
  • 3 pièces
  • Non meublé (vide)

Description

Description générale de ce bien

Cet appartement confortable est situé dans un complexe élégant au centre historique de Bergen op Zoom. L'appartement est au deuxième étage et est accessible par un ascenseur. Il s'agit d'un appartement de 3 pièces avec 2 chambres et un salon spacieux.

Dans le complexe, un beau jardin/terrasse commun a été aménagé pour que tous les résidents puissent en profiter.

Agencement de ce bien

Rez-de-chaussée :
Au rez-de-chaussée, vous trouverez l'entrée générale du complexe. Ici, vous trouverez notamment le tableau d'interphone, les boîtes aux lettres, l'escalier et l'ascenseur.
Juste à côté de l'entrée générale se trouve une salle commune où les résidents peuvent garer leurs bicyclettes.

Premier étage :
Au premier étage du complexe, il y a le jardin intérieur commun. Ce jardin est planté de verdure et dispose d'une terrasse spacieuse. Tous les résidents du complexe peuvent en profiter.

Au premier étage, il y a également des unités de stockage externes. Chaque appartement dispose de sa propre unité de stockage d'environ 4 m2. Ces unités de stockage se trouvent dans une zone sécurisée.

Deuxième étage :
Cet appartement est situé au deuxième et dernier étage du complexe. Les appartements sont accessibles par la galerie.
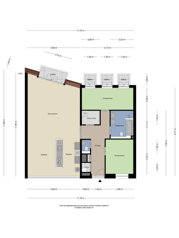
Une entrée spacieuse donne accès à presque toutes les pièces de l'appartement : le compteur, la salle des chaudières, la chambre 1, la chambre 2, la salle de bains, les toilettes, le lave-linge et le salon avec cuisine ouverte.

Dans la salle des chaudières, vous trouverez notamment l'installation de chauffage (Itho Kli-max 2006) et l'unité de ventilation mécanique. Cette pièce offre également suffisamment d'espace pour un rangement supplémentaire.

Les toilettes sont partiellement carrelées et sont équipées d'un WC suspendu et d'un lavabo.

La chambre 1 est située du côté de la galerie et a une superficie d'environ 12 m2.
La chambre 2 est située à l'arrière avec vue sur la place Sint Joseph. Cette chambre dispose de trois grandes fenêtres avec de petits balcons derrière. Cette chambre a une superficie d'environ 14 m2.

La salle de bains est spacieuse et est équipée d'une baignoire, d'une douche, de toilettes et d'un double lavabo. La salle de bains est presque entièrement carrelée et fait environ 8 m2.

L'appartement dispose d'une salle de lavage séparée où il est possible d'installer un lave-linge et un sèche-linge. Cette pièce offre également suffisamment d'espace pour un rangement supplémentaire.

Le salon avec cuisine ouverte a un agencement très généreux. Le salon et la cuisine mesurent ensemble plus de 60 m2.
À l'arrière, avec vue sur la place Sint Joseph, se trouve un balcon.
À l'avant de la pièce, il y a une grande fenêtre qui permet une belle luminosité.

La cuisine a un aménagement ludique avec deux parties. La partie fixe au mur est équipée de différents placards, d'un réfrigérateur et d'un four.
De l'autre côté, il y a également divers placards, un lave-vaisselle, une plaque de cuisson (gaz), une hotte aspirante et un évier avec robinet mélangeur.

Frais de service

En plus du loyer, vous payez également une redevance fixe mensuelle pour les frais de service.
Ces frais de service s'élèvent à 55,00 € par mois.

Les services suivants sont inclus dans ces frais :
- Consommation d'électricité des espaces et équipements communs ;
- Coût de nettoyage des espaces communs ;
- Consommation d'eau des espaces communs ;
- Entretien de l'ascenseur dans la mesure où cela incombent aux locataires ;
- Entretien du jardin dans la mesure où cela incombent aux locataires ;
- 5 % de frais administratifs.

Stationnement

Puisque l'appartement est situé dans le centre de Bergen op Zoom, vous avez les options de stationnement suivantes :

1. Vous pouvez garer votre voiture dans une zone de stationnement gratuite située à environ 5 - 10 minutes à pied.
2. Vous pouvez faire une demande de permis de stationnement via la Gestion du Stationnement de Bergen op Zoom. Cela vous permet de vous garer dans une zone spécifique près du complexe.
3. Vous pouvez louer une place de stationnement (environ 75,00 € par mois) dans le garage sous la rue Koevoet. Ce garage appartient au même complexe d'immeubles.

Répondez à temps aux nouvelles offres de location

Plus de la moitié des demandes arrivent dans les 48 heures. Recevez des notifications instantanées pour les nouveaux biens et répondez plus rapidement avec Pararius+

Essayez Pararius+ pendant 14 jours pour 0,01 €

Cession

Prix de location
€ 1.325 par mois
En vente depuis
06-01-2026
Statut
À louer
Disponible
Au 01-02-2026
Contrat de location
À durée indéterminée
Durée
Nombre minimum 24 de mois
Garantie
€ 2.650
Intérieur
Non meublé (vide)

Surface et contenu

Surface habitable
113 m²

Construction

Type de logement
Appartement
Type de logement
Appartement avec galerie, Appartement
Type de construction
Construction existante
Année de construction
2004
Emplacement
En centre-ville

Répartition

Nombre de pièces
3
Nombre de chambres
2
Nombre d'étages
1
Installations
Toilette

Espace extérieur

Balcon
Présent
Jardin
Pas présent
Terrasse sur le toit
Pas présent

Énergie

Classe énergétique
A

Espace de rangement

Cellier
Présent

Parking

Présent
Oui
Type de parking
Payé

Garage

Présent
Non

Conditions de location

Permission de fumer
Non
Les animaux sont admis
Non
Groupe cible
travail
Revenus nécessaires
3 975 €
Signaler un problème