Contacter l’annonceur

Ce logement a été trouvé en dehors de notre propre réseau. En cliquant sur le bouton ci-dessous, vous accéderez directement au site de l’annonceur.

Loué sous réserve

à louer: Appartement Willem II Singel 40 E dans Roermond

Show on map
6041 HT (Binnenstad)
777 € par mois
  • 40 m²
  • 2 pièces
  • Non meublé

Description

! EN RAISON D'UN GRAND INTÉRÊT, IL N'Y A MALHEUREUSEMENT PLUS DE POSSIBILITÉ DE VISITES !

Appartement 1 chambre disponible dans un emplacement privilégié à Roermond

Idéalement situé au centre de Roermond, à quelques pas de la gare centrale, cet appartement cosy se répartit sur deux niveaux.

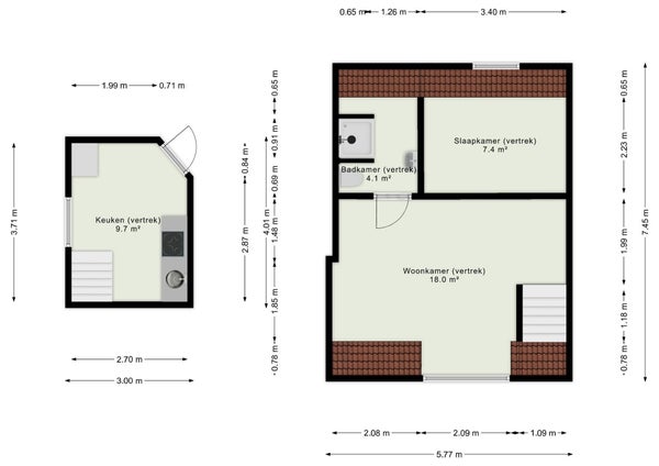
Plan
L'appartement se trouve au troisième étage du bâtiment. Vous entrez par la cuisine, qui est équipée d'une plaque de cuisson à induction, d'une hotte aspirante, d'un réfrigérateur avec compartiment congélateur et d'un four. En montant les escaliers, vous accédez au deuxième niveau, où se trouvent le salon, la chambre et la salle de bains.

La salle de bains est équipée d'une douche, d'un toilette et d'un lavabo. L'emplacement pour la machine à laver se trouve également ici.

Caractéristiques

  • Superficie habitable : environ 40 m²
  • Revêtement de sol en stratifié
  • Emplacement central près des commerces, de la gare et des axes routiers

Conditions de location

  • Loyer de base : 777 € par mois
  • Provision pour charges (y compris gaz, eau, électricité, internet, ameublement, etc.) : 245 € par mois
  • Dépôt : 2 mois de loyer de base
  • Interdiction de fumer à l'intérieur
  • Animaux non admis
  • Maximum 2 personnes

Cession

Prix de location
€ 777 par mois
Prix au m²
€ 19
En vente depuis
17-03-2026
Statut
Loué sous réserve
Disponible
Au 01-04-2026
Particularités
Monument historique
Contrat de location
À durée indéterminée
Durée
Nombre minimum 12 de mois
Garantie
€ 1.554
Intérieur
Non meublé
État d'entretien
Bon/Bonne/Bien

Surface et contenu

Surface habitable
40 m²

Construction

Type de logement
Appartement
Type de logement
Maison avec porche, Appartement
Type de construction
Construction existante
Année de construction
1891
Emplacement
  • En centre-ville
  • Proche des transports publics

Répartition

Nombre de pièces
2
Nombre de chambres
1
Nombre de salles de bains
1
Nombre d'étages
2
Étage
4
Nombre d'étages dans l'immeuble
4
Installations
  • Connexion internet
  • Douche

Espace extérieur

Balcon
Pas présent
Jardin
Pas présent
Terrasse sur le toit
Pas présent

Énergie

Classe énergétique
B

Espace de rangement

Cellier
Pas présent

Parking

Présent
Oui
Type de parking
Permis, licence, autorisation

Garage

Présent
Non

Conditions de location

Permission de fumer
Non
Les animaux sont admis
Non
Groupe cible
travail
Revenus nécessaires
2 400 €
Nombre maximum de résidents
2
Signaler un problème