Contatta l’inserzionista

Questo immobile è stato trovato al di fuori della nostra rete. Tramite il pulsante qui sotto verrai reindirizzato direttamente al sito dell’inserzionista.

New

In affitto: Casa Van 't Hoffstraat in Haarlem

Show on map
2014 RE (Zeeheldenbuurt)
3.250 € al mese
  • 107 m²
  • 5 stanze
  • Semi arredato

Descrizione

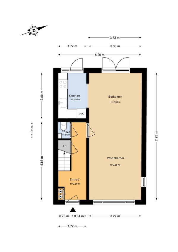
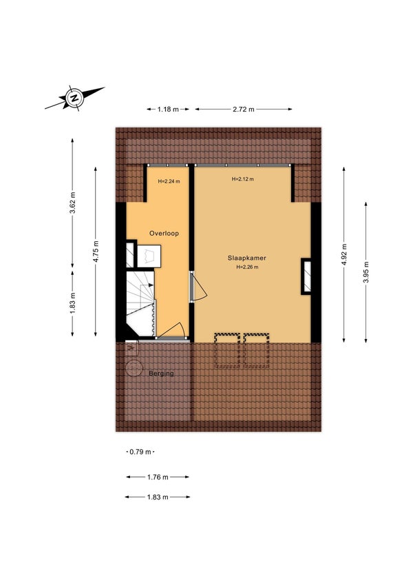
Una casa familiare ristrutturata, molto ordinata, non arredata, di 5 stanze (107m2) in una zona adatta ai bambini a Haarlem Ovest. Parcheggio gratuito, vicino a negozi, trasporti pubblici e alle dune. Pianta; ingresso, corridoio (4,86x1,78) con moderno bagno con lavabo, ripostiglio e armadio contatori. Soggiorno (7,93x3,28) con pavimenti in legno e porte verso il giardino sul retro (38m2) esposto a ovest con accesso dalla parte posteriore. Cucina semi-aperta moderna del 2017 (2,90x1,76) con piano cottura, cappa, forno, lavastoviglie, frigorifero + congelatore e porta verso il giardino sul retro. 1° piano; corridoio (2,68x0,83) con armadio di stoccaggio (0,60x0,60). Bagno moderno (2,30x1,72) con vasca/doccia, lavabo, wc e scaldasalviette. 3 camere da letto (4,43x3,30 / 3,43x3,30 / 2,80x1,77). 2° piano; corridoio/utilità spazioso (3,56x1,46) con attacco per lavatrice e asciugatrice. Spazio con il sistema di riscaldamento, inverter per i pannelli solari e ripostiglio. Camera da letto (5,20x3,10). Questa casa ha l'etichetta energetica A.

Trasferimento

Prezzo di affitto
€ 3.250 al mese
Prezzo al m²
€ 30
In offerta dal
02-03-2026
Stato
In affitto
Disponibile
Dal 01-04-2026
Contratto di noleggio
Periodo illimitato
Durata
Almeno 12 mesi
Caparra
€ 6.500
Interni
Semi arredato
Stato di manutenzione
Buono

Area e capacità

Zona giorno
107 m²
Contenuto
373 m³

Costruzione

Tipo di abitazione
Casa
Tipo di abitazione
Casa collegata, Casa unifamiliare
Tipo di struttura
Edificio esistente
Anno di costruzione
1938
Posizione
In zona residenziale

Classificazione

Numero di stanze
5
Numero di camere da letto
4
Numero di bagni
1
Numero di piani
3
Infrastrutture
  • Vasca da bagno
  • Allacciamento fognario
  • Lucernario
  • Toilette

Spazio esterno

Balcone
Non presente
Giardino
Presente (37 m², situato in ovest)
Ingresso sul retro
Presente
Terrazza sul tetto
Non presente

Energia

Isolamento
Isolamento delle intercapedini murarie, Doppi vetri, Isolamento del soffitto, Isolamento delle pareti
Caldaia di riscaldamento centralizzato
Vaillant Ecotec Plus HR (Gas, dal 2015, Immobile)
Classe energetica
A

Spazio adibito a magazzino

Magazzino
Non presente

Strutture di parcheggio

Presente
Tipo di parcheggio
Pubblico

Garage

Presente
No

Condizioni di affitto

È consentito fumare
No
Animali domestici ammessi
No
Pubblico di destinazione
Occupato
Requisiti di reddito
9.750 €
Segnala un problema con questa proprietà