Kontakt mit dem Anbieter

Diese Wohnung wurde außerhalb unseres eigenen Netzwerks gefunden. Über die Schaltfläche unten gelangen Sie direkt zur Website des Anbieters.

Neu

Zur Miete: Etagenwohnung Admiraal De Ruijterweg in Amsterdam

Auf der Karte anzeigen
1056 ET (Geuzenbuurt)
3.100 € pro Monat
  • 83 m²
  • 3 Zimmer
  • Möbliert

Beschreibung

ADMIRAAL DE RUYTERWEG (CA.90M2) AMSTERDAM / WEST - BAARSJES

BESICHTIGUNGEN ÜBER DIE WEBSITE UND NICHT TELEFONISCH
GEEIGNET FÜR WG-BEWOHNER

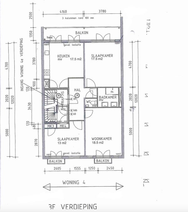
Möbliertes Apartment mit 2 Schlafzimmern und 3 Balkonen im 3. Stock.

Aufteilung:
Auf der Rückseite des Apartments befindet sich die Küche (ca. 4.16 x 3.78 = 15.72m2), ausgestattet mit einem 4-flammigen Gasherd, Backofen/Mikrowelle, Kühlschrank mit Gefrierfach und Geschirrspüler.
Das Hauptschlafzimmer (ca. 3.78 x 4.70 = 17.76m2) und die Küche haben beide Zugang zum Balkon nach Westen (ca. 7,94 x 1,35 = 10,71 m2).
Vorn befindet sich das Wohnzimmer (ca. 5.00 x 3.70 = 18.5m2) und das 2. Schlafzimmer (ca. 4.20 x 3.35 = 14.07m2). Jedes Zimmer hat einen französischen Balkon.
Das Badezimmer verfügt über eine begehbare Dusche. Die Toilette ist separat.
Das Apartment hat doppelt verglaste Fenster, Laminatböden, eine Rundumisolierung und Fußbodenheizung.

Lage: An der Ecke der Admiraal de Ruyterweg und der Jan Evertsenstraat, nur wenige Gehminuten von Supermärkten, anderen Geschäften, Restaurants und mit guten Verbindungen zu den öffentlichen Verkehrsmitteln entfernt.

Übertragung

Mietpreis
€ 3.100 pro Monat
  • Inklusive: Gas, Unterhaltskosten
Preis pro m²
€ 37
Angeboten seit
18-03-2026
Status
Zu vermieten
Verfügbar
sofort
Bürge
€ 6.150
Einrichtung
möbliert
Zustand der Wartung
ausgezeichnet

Fläche und Inhalt

Wohnfläche
83 m²
Inhalt
249 m³

Bau

Immobilienart
Etagenwohnung
Haustyp
Obergeschosswohnung, Appartement
Art Gebäude
Bestandsgebäude
Gebäude & Baujahr
1912
Lage
An einer vielbefahrenen Straße

Einteilung

Anzahl Zimmer
3
Anzahl Schlafzimmer
2
Bad
1
Anzahl Wohnebenen
1
Etage
3
Grundriss & Ausstattung
  • Dusche
  • Toilette

Außenbereich

Balkon
Vorhanden
Dachterrasse
Nicht vorhanden

Energie

Energieeffizienzklasse
A

Parkplätze

Vorhanden
Ja
Parkplatztyp
öffentlich
Ein Problem mit dieses Haus melden