Zur Miete: Etagenwohnung Plantage Middenlaan 8 E in Amsterdam
Auf der Karte anzeigen- 358 m²
- 7 Zimmer
- Möbliert
Beschreibung
Einzigartig! Fantastisches und stilvoll gestaltetes möbliertes Erdgeschossapartment mit 358 m² und Deckenhöhen von bis zu fast 5 Metern, gelegen in einem majestätischen Gebäude im trendigen und kulturellen Plantagebuurt-Viertel am Rande des Stadtzentrums.
Dieses äußerst besondere Apartment hat einen großzügigen und spielerischen Grundriss, wobei die unterschiedlichen Deckenhöhen den Räumen ihren eigenen Charakter verleihen. Es ist derzeit als wunderbares Familienheim mit 5 Schlafzimmern, 3 Badezimmern und viel Wohnraum eingerichtet. Es verfügt über zwei sonnige Patio-Gärten von ca. 55 m². Ein schönes Detail sind die verschiedenen großen Fenster, die viel natürliches Licht hineinlassen.
Ausstattung:
Geräumiger Eingangsbereich mit Stauraum und Garderobe. Der Flur bietet Zugang zu allen Räumen.
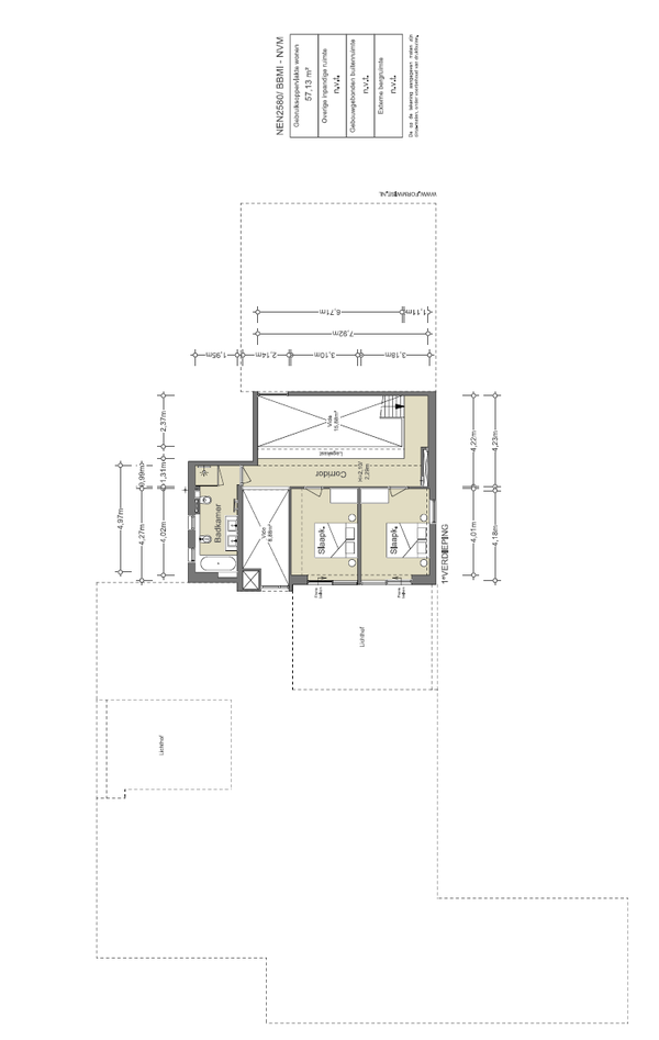
Im vorderen Bereich befinden sich das helle Wohnzimmer mit offener Küche und eine wunderschöne Decke mit hohen Fenstern zur Plantage Middenlaan. Im Flur gibt es ein Gäste-WC mit Waschbecken.
Ein zweites Gäste-WC befindet sich neben dem Wohnzimmer. Im Erdgeschoss gibt es zwei geräumige Schlafzimmer, von denen eines mit begehbarem Kleiderschrank und en-suite Badezimmer ausgestattet ist. Das Badezimmer ist mit einer Badewanne, einem Doppelwaschbecken, einer begehbaren Dusche und einer Toilette ausgestattet.
Beide Zimmer haben Zugang zu einem eigenen hellen Patio. Eines dieser Schlafzimmer kann auch als Kino genutzt werden.
Die Bibliothek, die auch als formelle Esszimmer genutzt werden kann, hat Zugang zu einem der Patios durch französische Türen. Im Flur neben der Bibliothek befinden sich zwei Weinklimaschränke.
Die Mezzanine ist über die einzigartige Designertreppe zu erreichen. Hier befinden sich zwei kleinere Schlafzimmer und ein separates Badezimmer mit begehbarer Dusche, Badewanne, Doppelwaschbecken und Toilette.
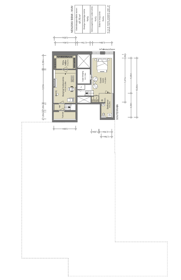
Das Untergeschoss ist perfekt für ein Gästezimmer und hat ein en-suite Badezimmer mit Toilette, Waschbecken und begehbarer Dusche.
Auf dieser Etage befinden sich auch ein Weinkeller und ein geräumiger Abstellraum.
Lage:
Die Immobilie befindet sich im grünen Plantageviertel. Die Plantage Middenlaan bietet nicht nur schönen Wohnraum, sondern ist auch ideal gelegen in einem lebhaften Viertel mit vielen Annehmlichkeiten. Dieses historische Viertel im Herzen von Amsterdam ist bekannt für seine grünen Straßen, sein kulturelles Erbe und den einfachen Zugang zu allerlei Annehmlichkeiten. Nur einen Steinwurf entfernt finden Sie eine Auswahl an exzellenten Restaurants und Cafés. Für Liebhaber eines köstlichen Brunchs oder Kaffees gibt es in der Nachbarschaft gemütliche Cafés und Bäckereien, in denen Sie frische Leckereien genießen können. Für Kunst- und Kulturfreunde sind das nahegelegene H'Art-Museum (ehemals Hermitage), das Carré-Theater, das Marinemuseum und die Stopera alle fußläufig erreichbar. Auch der Artis Royal Zoo und der Hortus Botanicus sind nur einen Steinwurf entfernt. Mehrere Supermärkte befinden sich in fußläufiger Entfernung, sodass Sie einfachen Zugang zu allen wichtigen Dingen haben. Sportbegeisterte können sich in SportCity Waterlooplein oder 3SIXTY5 aufhalten. Sie sind ebenfalls sehr nah am Stadtzentrum und anderen beliebten Vierteln wie Nieuwmarkt und De Pijp.
In der Umgebung gibt es mehrere gute und gemütliche Restaurants und Cafés sowie verschiedene Museen. Mehrere Supermärkte sind in fußläufiger Entfernung, und in der nahegelegenen Utrechtsestraat gibt es eine breite Palette von Geschäften. Auch die Nationale Oper & Ballett (die Stopera), Carré, der Rembrandtplein und die Nieuwmarkt sind nur einen kurzen Abstand entfernt.
Die Erreichbarkeit ist ausgezeichnet; in fußläufiger Entfernung gibt es mehrere Straßenbahn- und Bushaltestellen. Die U-Bahn-Station Waterlooplein ist nur wenige Minuten mit dem Fahrrad oder 5 Minuten zu Fuß entfernt. Es gibt eine Straßenbahnhaltestelle und eine U-Bahn-Station in fußläufiger Entfernung, was andere Teile der Stadt leicht zugänglich macht. Der Hauptbahnhof Amsterdam ist etwa 10 Minuten mit dem Fahrrad entfernt und bietet Verbindungen zu allen Teilen des Landes sowie den Flughafen Schiphol in erreichbarer Nähe. Mit dem Auto ist der A10-Ring über den IJ-Tunnel und den Piet-Hein-Tunnel schnell zu erreichen, sodass man schnell die Stadt verlassen kann.
BESONDERHEITEN:
- Sofort verfügbar für einen Zeitraum von 2-3 Jahren; (Mietvertrag: Tussenhuur, Modell C)
- Wohnfläche 358 m²;
- Zwei geräumige Patios;
- Fünf gut dimensionierte Schlafzimmer, drei Badezimmer; ein Schlafzimmer hat zudem ein Heimkino
- Helles Zuhause mit hohen Decken;
- Geräumiges Wohnzimmer mit offener Küche;
- Abstellraum im Untergeschoss; mit Weinkeller
- Parkmöglichkeiten sind mit einem Abonnement in der Markenhoven-Garage verfügbar (sofern Platz vorhanden ist).
Die Miete excl. Gas, Wasser, Strom, TV/Internet und kommunale Abgaben.
HAFTUNGSAUSSCHLUSS
Diese Informationen wurden von uns mit der gebotenen Sorgfalt zusammengestellt. Von unserer Seite wird jedoch keine Haftung für eventuelle Unvollständigkeiten, Ungenauigkeiten oder anderweitige Ansprüche übernommen. Alle angegebenen Größen und Maße sind indikativ. ******
Übertragung
- Mietpreis
-
€ 9.000 pro Monat
- Preis pro m²
- € 25
- Angeboten seit
- 20-03-2026
- Status
- Zu vermieten
- Verfügbar
- sofort
- Einrichtung
- möbliert
- Zustand der Wartung
- gut
Fläche und Inhalt
- Wohnfläche
- 358 m²
- Inhalt
- 1.065 m³
Bau
- Immobilienart
- Etagenwohnung
- Haustyp
- Doppeltes Erdgeschoss, Appartement
- Art Gebäude
- Bestandsgebäude
- Gebäude & Baujahr
- 1905
- Lage
- In einem Wohnviertel
Einteilung
- Anzahl Zimmer
- 7
- Anzahl Schlafzimmer
- 5
- Bad
- 3
- Anzahl Wohnebenen
- 3
- Grundriss & Ausstattung
-
- Bad
- Mechanische Lüftung
- Dusche
- Schiebetüren
- Abstellraum
- Toilette
Außenbereich
- Balkon
- Nicht vorhanden
- Garten
- Vorhanden (55 m², gelegen auf/an Westen)
- Gartenbeschreibung
- patio atrium
- Hintereingang
- Nicht vorhanden
- Dachterrasse
- Nicht vorhanden
Energie
- Isolierung
- Doppelverglasung, Fußbodenisolierung, Wanddämmung
- Heizung
- Heizkessel, teilweise Fußbodenheizung
- Warmwasser
- Heizkessel
Parkplätze
- Vorhanden
- Ja
- Parkplatztyp
- bezahlt
Garage
- Vorhanden
- Nein