Contact with the rental provider

This property was found outside our own network. With the button below you will go directly to the provider.

Neu

Zur Miete: Etagenwohnung Jansstraat 14 A in Haarlem

Auf der Karte anzeigen
2011 RX (Bakenes)
2.500 € pro Monat
  • 87 m²
  • 2 Zimmer
  • Teilmöbliert oder möbliert

Beschreibung

Luxuriöse Loftwohnung zur Miete im Zentrum von Haarlem mit Dachterrasse.

Voll möbliert
Sehr atmosphärisch!
Diese schöne, super moderne und 2021 renovierte Wohnung befindet sich an einem fantastischen und zentralen Ort im Stadtzentrum von Haarlem. In Gehweite zu allen netten Restaurants, dem Bahnhof, den schönen Geschäften und dem Nachtleben.
Sie befindet sich in den obersten 2 Etagen des Gebäudes.
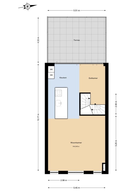
Die 2. Etage mit luxuriöser Küche, schönem Fischgrätenparkett und einer vollständig zu öffnenden Schiebetür mit Zugang zur Dachterrasse wurde 2021 komplett renoviert.
Die Küche ist luxuriös mit einer Kochinsel und ausgestattet mit allen gewünschten Einbaugeräten wie Geschirrspüler, integrierter Induktionskochplatte, Ofen und Mikrowelle.
Ein gemütliches Wohnzimmer mit einer schönen Lounge und Zugang zur sonnigen und geräumigen Dachterrasse von nicht weniger als 25m2, die nach Südwesten ausgerichtet ist.

Die 2. Etage verfügt über ein geräumiges Schlafzimmer, Einbauschränke und einen Arbeits-/Studienbereich an der Vorderseite. Badezimmer mit Waschbecken und Bad/Duschkombination.
Die Wohnung wird voll möbliert angeboten.
Die Miete ist zuzüglich Gas, Wasser und Strom.

Übertragung

Mietpreis
€ 2.500 pro Monat
Angeboten seit
28-01-2026
Status
Zu vermieten
Verfügbar
In Absprache
Bürge
€ 5.000
Einrichtung
teilmöbliert oder möbliert
Zustand der Wartung
ausgezeichnet

Fläche und Inhalt

Wohnfläche
87 m²
Inhalt
325 m³

Bau

Immobilienart
Etagenwohnung
Haustyp
Obergeschosswohnung, Appartement
Art Gebäude
Bestandsgebäude
Gebäude & Baujahr
1932
Lage
Im Zentrum

Einteilung

Anzahl Zimmer
2
Anzahl Schlafzimmer
1
Bad
1
Anzahl Wohnebenen
2
Etage
2
Grundriss & Ausstattung
  • Bad
  • Kabelfernsehen
  • Dachterrasse
  • Dusche
  • Schiebetüren
  • Toilette
  • Waschraum

Außenbereich

Balkon
Nicht vorhanden
Dachterrasse
Vorhanden

Energie

Isolierung
Fußbodenisolierung, Dachisolierung, Wanddämmung
Heizung
Heizkessel
Warmwasser
Heizkessel
Energieeffizienzklasse
C
Ein Problem mit dieses Haus melden