Contact with the rental provider

This property was found outside our own network. With the button below you will go directly to the provider.

Neu

Zur Miete: Etagenwohnung Koningsplein 3 A in Maastricht

Auf der Karte anzeigen
6224 EB (Wyckerpoort)
676 € pro Monat
  • 24 m²
  • 3 Zimmer
  • 1930

Beschreibung

ZU VERMIETEN - 2 STUDENTENZIMMER

2 Zimmer zu vermieten im geräumigen Erdgeschoss mit Südgarten, in der Nähe des Bahnhofs und der A2. Perfekte Lage: In nur wenigen Minuten sind Sie auf der Autobahn, am Bahnhof und im beliebten Stadtteil Wyck. Vor allem liegt die Wohnung neben dem wunderschön neu angelegten Freiheitpark und dem Grünen Teppich.

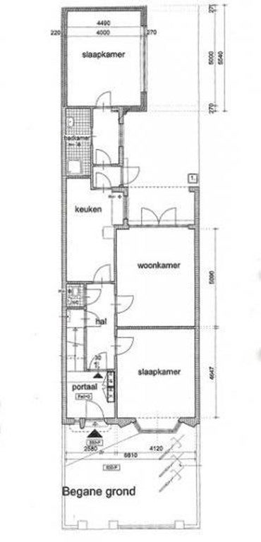
Aufteilung der Wohnung:
Erdgeschoss
Geräumiger Flur mit originalem Boden.
Zimmer an der Vorderseite (4.99x4.07), geräumiges Wohnzimmer (4.07x5.43), Küche (3.04x3.91), Badezimmer (3.27x1.03)
Zimmer an der Rückseite (3.94x5.12)

Beide Zimmer sind ab dem 01-01-2025 verfügbar.
Schönes, geräumiges Zimmer an der Vorder- und Rückseite des Hauses.

Besonderheiten: Nur weibliche Studenten erlaubt.

Zimmer 1 - Vorderseite
Miete: 696,66 €
Nebenkosten: 100,00 € inklusive Gasvorschuss
Exklusive Wasser und Strom

Gesamtmiete: 796,66 €
Kaution: 1350,- €

Zimmer 2 - Rückseite
Miete: 696,99 €
Nebenkosten: 100,00 € inklusive Gasvorschuss
Exklusive Wasser und Strom

Gesamtmiete: 796,66 €
Kaution: 1350,- €

Haftungsausschluss - Mieten bei 'mein Haus und ich'

  • Wir laden, abhängig vom Wohnraum, die ersten 10, 15 oder 20 potenziellen Kandidaten zur Besichtigung in der Reihenfolge der Reaktionen ein.
  • Anschließend halten wir maximal 20 Kandidaten in unserem Portfolio, ebenfalls in der Reihenfolge der Reaktionen.
  • Die übrigen Kandidaten erhalten eine Nachricht, dass wir die maximalen Reaktionen erreicht haben.
  • Kandidaten können sich kostenlos auf unserer Website für eine Suchanfrage anmelden, für die Sie eine E-Mail mit unserem neuesten Angebot erhalten.
  • Als Einkommensanforderung müssen Sie mindestens dreimal (3) die monatliche Miete brutto verdienen oder einen Bürgen haben, der diese Anforderung erfüllt.
  • Die Informationen auf unserer Website wurden mit gebotener Sorgfalt zusammengestellt.
  • Wir akzeptieren keine Haftung für etwaige Unvollständigkeiten oder Ungenauigkeiten sowie deren Folgen.
  • Alle angegebenen Maße und Flächen sind indikativ und daraus können keine Rechte abgeleitet werden.
  • Bitte lesen Sie die Broschüre sorgfältig durch, insbesondere die Aufschlüsselung der Miete und der Gesamtmiete pro Monat.
  • Alle potenziellen Mieter werden umfassend auf Kreditwürdigkeit und Einkommensprüfung überprüft.

Übertragung

Mietpreis
€ 676 pro Monat
Angeboten seit
22-12-2025
Status
Zu vermieten
Verfügbar
In Absprache
Bürge
€ 1.350
Zustand der Wartung
gut

Fläche und Inhalt

Wohnfläche
24 m²
Inhalt
270 m³

Bau

Immobilienart
Etagenwohnung
Haustyp
Erdgeschosswohnung, Appartement
Art Gebäude
Bestandsgebäude
Gebäude & Baujahr
1930
Lage
Neben einem Park

Einteilung

Anzahl Zimmer
3
Anzahl Schlafzimmer
2
Bad
1
Anzahl Wohnebenen
1

Außenbereich

Balkon
Nicht vorhanden
Garten
Vorhanden
Dachterrasse
Nicht vorhanden

Energie

Energieeffizienzklasse
F

Garage

Vorhanden
Nein
Ein Problem mit dieses Haus melden