Contact with the rental provider

This property was found outside our own network. With the button below you will go directly to the provider.

For rent: House Graafschap Hollandlaan 27 in Den Haag

Show on map
2553 MC (Kraayenstein en Vroondaal)
€3,900 per month
  • 166 m²
  • 7 rooms
  • Upholstered

Description

Will you be the new resident of this beautiful newly built sustainable Mansion with garage in the new Park Warande in Vroondaal with 5 bedroosm and 2 bathrooms ? Overlooking rustic water – and the park, which will be completely set up for recreation for young and old. This beautiful luxurious corner house of more than 160 m2 is located on a spacious plot with garage, parking space on site, and a beautiful modern landscaped low-maintenance front and back garden.

The location is excellent; within walking distance of dunes, beach and recreational areas, the International School (ISH), roads to A4, A12, A13 and public transport to the center of The Hague. A luxurious and quiet beautiful living environment! A unique place as your new home, where practical and chic living pleasure goes hand in hand with sustainability.

Layout: The house has been finished with great care and with high-quality materials.

You reach the entrance of the house through the front garden with spacious terrace and private parking. The spacious hall gives access to the living room and toilet.
When you enter the house you will immediately notice the tranquility that radiates from the house and the surroundings. The carefully selected materials and equipment give you a pleasant welcome. The hall is pleasantly light and spacious. You enter the house through the industrial glass door. The beautiful cast floor based on natural, anti-allergic (chemical-free) and sustainable materials is pleasantly warm through underfloor heating and ensures a pleasant living climate. Even in the summer when it can have a cooling effect.

On the right you will find a beautiful luxury open kitchen with cooking island with all the equipment you would expect from these days, such as a refrigerator, freezer, dishwasher, combi-microwave oven, combi-steam oven and large induction hob with integrated extractor. The kitchen is spacious, overlooks the water and park and is wonderfully light through the many windows. The kitchen adjoins the living room, with the open white staircase in the middle. Through the living room you can walk through the large patio doors into the beautifully landscaped maintenance-friendly garden, with several terraces.

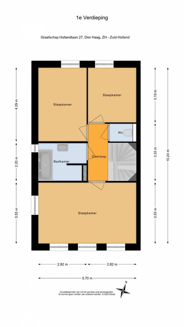
Through the spacious staircase you go to the 1st floor. The hallway gives access to all rooms. Three well-sized bedrooms, bathroom and separate toilet. A spacious light master bedroom overlooking the water and the park. Two more spacious bedrooms are located on this floor. The bathroom is equipped with a walk-in shower, bath and double sink with beautiful bowls. The design radiator completes the picture.

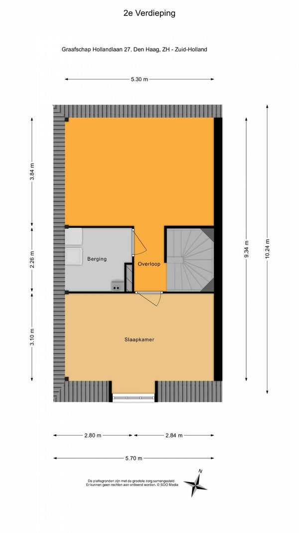
The stairs to the 2nd floor lead you to various rooms, where you will find the 4th spacious bedroom at the front, including natural light through the window. At the rear there is also a spacious area that can be filled in various ways. Workstations, fitness room, play area, just what is desirable for your situation. In the middle of this floor is the (separate) technical room with space for the washing machine and dryer.

In short, a spacious luxury sustainable home, equipped with the latest techniques in the field of energy use. The house is heated by a heat pump, has solar panels on the roof and is extremely well insulated.

Things worth knowing:

  • 5 bedrooms and 2 bathrooms
  • the deposit is 1 month's rent;
  • the minimum rental period is 1 year, indefenite period
  • energy label: A +;
  • heat pump;
  • underfloor heating and cooling;
  • garage available;
  • pets (negotiable) / smoking not allowed;
  • 2 parking spaces on site as well as garage;
  • All equipment is new and smart home ready;
    • Security installation;
  • Ready for fiber optic connection;
  • Unobstructed view of the water;
  • rent : €3.900,00
  • available as of March 1 2026

This fantastic spacious and sustainable home in the beautiful Vroondaal district is definitely

Respond in time to new rental listings

More than half of all responses arrive within 48 hours. Get instant notifications for new listings and respond faster with Pararius+

Try Pararius+ for 14 days for €0.01

Transfer

Rental price
€ 3.900 per month
Offered since
30-12-2025
Status
For rent
Available
From 01-03-2026
Rental agreement
Unlimited period
Duration
Minimum of 12 months
Deposit
€ 3.900
Interior
Upholstered
Upkeep
Excellent

Area and capacity

Living area
166 m²
Volume
550 m³

Construction

Type of house
House
Type of house
Corner house, Town house
Type of construction
Existing building
Year of construction
2021
Location
  • By the water
  • in a residential area

Classification

Number of rooms
7
Number of bedrooms
5
Number of bathrooms
2
Number of floors
4
Facilities
  • Alarm
  • Bath
  • Shower
  • Toilet

Outside space

Balcony
Not present
Garden
Present (100 m², located on the north-west)
Back entrance
Present
Roof terrace
Not present

Energy

Insulation
Triple glazing
Heating
Complete floor heating
Energy rating
A++++

Storage

Shed/Storeroom
Not present

Parking facilities

Present
Yes
Type of parking
On private land

Garage

Present
Yes

Rental conditions

Smoking allowed
No
Pets allowed
No
Target audience
Working
Income requirement
€11,000
Report a problem with this property