Contacter l’annonceur

Ce logement a été trouvé en dehors de notre propre réseau. En cliquant sur le bouton ci-dessous, vous accéderez directement au site de l’annonceur.

New

à louer: Maison de famille Immenbergweg dans Beekbergen

Show on map
7361 GP (Bosgebied Beekbergen-Zuid)
1 250 € par mois
  • 100 m²
  • 3 pièces
  • Non meublé

Description

Disponible à partir du 1er mai 2026, cette maison de loisirs de luxe (100m2) avec 2 chambres et située sur un terrain privé d'environ 550m2 est à louer !

La propriété est située dans la zone boisée en périphérie de Beekbergen au Green Village Park. Ce parc récréatif non commercial abrite 65 maisons de loisirs individuelles sur un terrain de 4 hectares. Vous ressentirez immédiatement la tranquillité de ce parc dès votre arrivée. La maison est située sur l'anneau extérieur de la route à sens unique ovale du côté de l'Immenbergweg.

Le Green Village Park Beekbergen est situé à proximité de l'A50, ce qui permet un accès rapide aux autoroutes A50 et A1. Vous pouvez rejoindre Arnhem et Apeldoorn en 15 minutes.

Présentation :
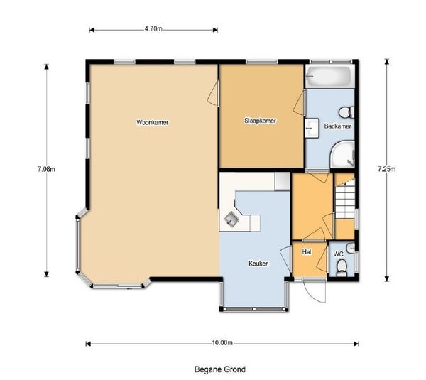
Grand salon-salle à manger lumineux avec porte-fenêtre et cuisine semi-ouverte équipée de divers appareils encastrés (lave-vaisselle, micro-ondes/four, hotte aspirante, réfrigérateur/congélateur). Chambre, salle de bain avec baignoire et cabine de douche avec un WC séparé au rez-de-chaussée. L'accès à l'étage supérieur se fait par l'escalier fixe, où se trouve une 2ème chambre très spacieuse ainsi que divers placards intégrés et espace de rangement. La maison dispose d'un jardin ensoleillé avec intimité, d'un abri en bois détaché et de 2 places de parking spacieuses.

Particularités :

  • Disponible à partir du 1er mai 2026
  • Loyer 1 250 € par mois
  • Provision pour eau/gaz/électricité et frais de parc 175,00 € par mois
  • Frais de parc 125,00 € par mois
  • Dépôt de garantie 2 500,00 €
  • Animaux de compagnie selon accord

Cession

Prix de location
€ 1.250 par mois
Prix au m²
€ 12
En vente depuis
05-03-2026
Statut
À louer
Disponible
Au 01-05-2026
Contrat de location
Temporary rental
Durée
Nombre maximum 12 de mois
Garantie
€ 2.500
Intérieur
Non meublé
État d'entretien
Bon/Bonne/Bien

Surface et contenu

Surface habitable
100 m²
Superficie du terrain
550 m²
Capacité
350 m³

Construction

Type de logement
Maison de famille
Type de logement
Maison individuelle, Villa
Type de construction
Construction existante
Année de construction
2002
Emplacement
  • À la lisière du bois
  • Zone boisée
  • Hors zone urbaine
  • À l'abri

Répartition

Nombre de pièces
3
Nombre de chambres
2
Nombre de salles de bains
1
Nombre d'étages
2
Installations
  • Baignoire
  • Douche
  • Portes coulissantes
  • Toilette

Espace extérieur

Balcon
Pas présent
Jardin
Présent (500 m², situé sur nord-est)
Description de jardin
tuin rondom
Entrée arrière
Présent
Terrasse sur le toit
Pas présent

Énergie

Isolation
Double vitrage
Chauffage
Chaudière
Eau chaude
Chaudière
Classe énergétique
B
Signaler un problème