Contact with the rental provider

This property was found outside our own network. With the button below you will go directly to the provider.

For rent: Room Coendersweg in Groningen

Show on map
9722 GE (Helpman)
€557 per month
  • 10 m²
  • 5 rooms
  • Upholstered

Description

Starting February 1, 2026, a group house with 5 rooms will be available, ideal for a group of friends.

Location:
The rooms are located in Helpman East. Within walking distance are the Albert Heijn supermarket and various other amenities. The center of Groningen can be reached by bike in about 10 minutes.

Layout:
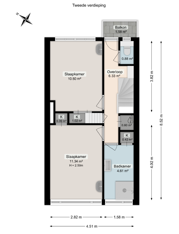
The rooms are spread across the first, second, and third floors of the building. Upon entering, you immediately find the hallway that provides access to the rooms and communal areas. On the first floor are room 1 (14.20 m²) and room 2 (10.73 m²), as well as the kitchen and balcony. The kitchen is equipped with all modern conveniences. On the second floor are room 3 (11.34 m²) and room 4 (10.50 m²). This floor includes a bathroom, toilet, and balcony. Room 5 (22.01 m²) is located on the third floor and has its own roof terrace as well. See the floor plan in the photos for exact sizes and layout of the rooms.

Rent and deposit:
The rent for room 1 is €615.62 per month, including an advance of €75 for gas, water, electricity, internet, and television. (photos 8 to 11)
The rent for room 2 is €556.68 per month, including an advance of €75 for gas, water, electricity, internet, and television. (photos 12 to 15)
The rent for room 3 is €566.50 per month, including an advance of €75 for gas, water, electricity, internet, and television. (photos 16 to 19)
The rent for room 4 is €566.50 per month, including an advance of €75 for gas, water, electricity, internet, and television. (photos 20 to 23)
The rent for room 5 is €812.38 per month, including an advance of €75 for gas, water, electricity, internet, and television. (photos 24 to 30)

The deposit is one month’s rent.

Availability and rental period:
The rooms will be available from February 1, 2026. The rental agreement is for an indefinite period.

Interest:
Responses can only be submitted via our website by clicking 'Respond to this object.' Unfortunately, we cannot process telephone responses. The order in which responses are received will determine which candidates are invited for the first selection. Due to the large number of applications, we cannot respond to everyone. We typically invite about 5 candidates for viewings. Unfortunately, we cannot answer or invite everyone personally.

Transfer

Rental price
€ 557 per month
  • Includes: Electricity, Gas, Water
Offered since
29-12-2025
Status
For rent
Available
From 01-02-2026
Deposit
€ 557
Interior
Upholstered
Upkeep
Excellent

Area and capacity

Living area
10 m²

Construction

Type of house
Room
Type of house
Room

Classification

Number of rooms
5
Facilities
Toilet

Outside space

Balcony
Not present
Garden
Not present
Roof terrace
Not present

Storage

Shed/Storeroom
Not present

Parking facilities

Present
No

Garage

Present
No
Report a problem with this property