Contact with the rental provider

This property was found outside our own network. With the button below you will go directly to the provider.

New

In affitto: Stanza Coendersweg in Groningen

Show on map
9722 GE (Helpman)
557 € al mese
  • 10 m²
  • 5 stanze
  • Semi arredato

Descrizione

Dal 01-01-2025, 5 stanze saranno disponibili in Coendersweg 4-1A a Groningen.

Posizione:
Le stanze si trovano a Helpman-est. A pochi passi si trovano il supermercato Albert Heijn e vari altri servizi. Il centro di Groningen è raggiungibile in circa 10 minuti in bicicletta.

Distribuzione:
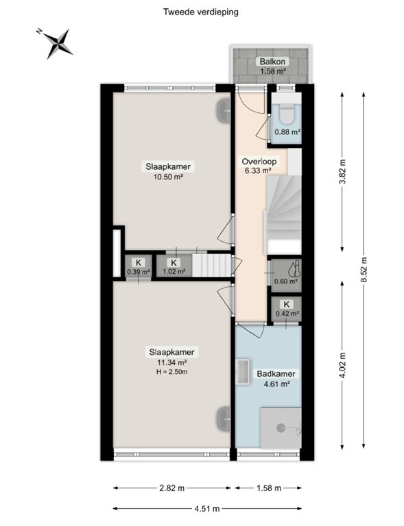
Le stanze si trovano al primo, secondo e terzo piano dell'edificio. Entrando, troverai direttamente il corridoio che dà accesso alle stanze e agli spazi comuni. Al primo piano si trovano la stanza 1 (14,20m2) e la stanza 2 (10,73m2), oltre alla cucina e al balcone. La cucina è attrezzata con tutte le comodità moderne. Al secondo piano si trovano la stanza 3 (11,34m2) e la stanza 4 (10,50m2). In questo piano sono presenti un bagno, un wc e un balcone. Al terzo piano si trova la stanza 5 (22,01m2), che dispone anche di una propria terrazza sul tetto. Vedi la pianta nei foto per le dimensioni esatte e la distribuzione delle stanze.

Prezzo di affitto e deposito:
Il prezzo di affitto della stanza 1 è di €615,62 al mese, inclusa una caparra di €75 per gas, acqua, elettricità, internet e televisione. (foto 8 a 11)
Il prezzo di affitto della stanza 2 è di €556,68 al mese, inclusa una caparra di €75 per gas, acqua, elettricità, internet e televisione. (foto 12 a 15)
Il prezzo di affitto della stanza 3 è di €566,50 al mese, inclusa una caparra di €75 per gas, acqua, elettricità, internet e televisione. (foto 16 a 19)
Il prezzo di affitto della stanza 4 è di €566,50 al mese, inclusa una caparra di €75 per gas, acqua, elettricità, internet e televisione. (foto 20 a 23)
Il prezzo di affitto della stanza 5 è di €812,38 al mese, inclusa una caparra di €75 per gas, acqua, elettricità, internet e televisione. (foto 24 a 30)

La caparra è equivalente a un mese di affitto.

Disponibilità e durata del contratto:
Le stanze saranno disponibili a partire dal 01-01-2026. Il contratto di affitto è a tempo indeterminato.

Interesse:
Le risposte possono essere inviate solo tramite il nostro sito web cliccando su 'Rispondi a questo oggetto'. Sfortunatamente, non possiamo elaborare le risposte telefoniche. L'ordine delle risposte ricevute determinerà quali candidati saranno invitati alla prima selezione. A causa dell'alto numero di domande, non possiamo rispondere a tutti. Di solito invitiamo circa 5 candidati per una visita. Sfortunatamente, non possiamo rispondere o invitare tutti personalmente.

Trasferimento

Prezzo di affitto
€ 557 al mese
  • Compreso: Elettricità, Gas, Aqua
In offerta dal
29-12-2025
Stato
In affitto
Disponibile
Dal 01-01-2026
Caparra
€ 557
Interni
Semi arredato
Stato di manutenzione
Eccellente

Area e capacità

Zona giorno
10 m²

Costruzione

Tipo di abitazione
Stanza
Tipo di abitazione
Stanza

Classificazione

Numero di stanze
5
Infrastrutture
Toilette

Spazio esterno

Balcone
Non presente
Giardino
Non presente
Terrazza sul tetto
Non presente

Spazio adibito a magazzino

Magazzino
Non presente

Strutture di parcheggio

Presente
No

Garage

Presente
No
Segnala un problema con questa proprietà