Contactar con el anunciante

Esta vivienda se ha encontrado fuera de nuestra red. A través del botón de abajo irás directamente a la página web del anunciante.

New

Para alquilar: Apartementos Houtstraat 23 en Almere

Show on map
1353 BA (Centrum Haven Zuid)
1.350 € al mes
  • 86 m²
  • 3 habitaciones
  • 2010

Descripción

NECESITA UN CÓDIGO DE OBJETO CUANDO NOS LLAME. EL CÓDIGO ES: 8 8 3 9 2
Visita
Solo programaremos una visita si ha creado una cuenta Qii y ha liberado sus detalles para nuestra inspección a través de DigiD. (Por favor, responda a través de 'Contáctenos' para los próximos pasos)
TENGA EN CUENTA: Ingresos mínimos de € 64,800,-

Descripción
Este apartamento de tres habitaciones se encuentra en una ubicación impresionante en el centro de Almere-Haven y está disponible. Este apartamento está en el segundo piso y tiene una hermosa vista del puerto y del Gooimeer. Uno de los lugares más hermosos de Almere-Haven, cerca de terrazas acogedoras, de la playa y de la duna.

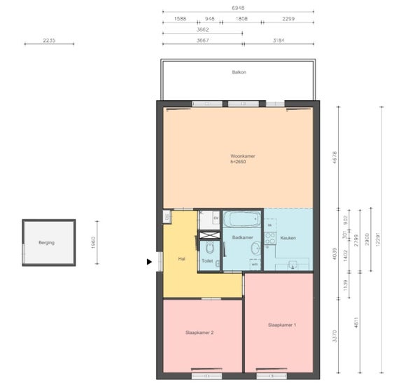
Distribución
Entrada común con escaleras. Pasillo con acceso a los dormitorios, baño separado, salón con cocina abierta de lujo. Almacenamiento externo.

Particularidades
Disponible desde principios de abril
Año de construcción 2010
Etiqueta A
No hay ascensor
2.º piso
2 dormitorios
Balcón
Cocina con electrodomésticos empotrados
Baño con ducha y bañera
Almacenamiento externo
El apartamento se alquila sin amueblar
El inquilino debe encargarse de pintar o empapelar las paredes y colocar un revestimiento de suelo
Renta mensual € 1,350,- (excluyendo costes de servicios)
Costes de servicios mensuales € 36,61 (incluyendo IVA)
Placa con nombre si se trata de una vivienda en un complejo (una sola vez) € 16,50
El inquilino debe solicitar personalmente gas y/o electricidad y agua

Requisito de ingresos
Confiable y cumple con los estándar de ingresos (48x el alquiler neto como ingresos anuales brutos);
Con un ingreso, el salario bruto anual debe ser al menos aproximadamente 48 veces el alquiler mensual del apartamento (para este apartamento de € 1,350,- de alquiler al mes, el salario bruto anual debe ser por lo tanto al menos de € 64,800-). Con dos ingresos, ambos salarios brutos anuales juntos deben ser al menos 48 veces el alquiler mensual del apartamento.
Depósito de dos veces el alquiler neto € 2,700,-

Periodo de alquiler
Un contrato de alquiler de al menos un año, y luego se prorrogará automáticamente por tiempo indefinido;
Después del período de alquiler mínimo de un año, el plazo de preaviso para el inquilino es de un mes;
El período de alquiler puede comenzar en cualquier día del mes. Yvastgoed determina la fecha de inicio del alquiler.

Asignación
Máximo de dos adultos en el contrato de alquiler;
Evaluación de ingresos para todos los contratistas; si un contratista cancela, se realizará una nueva evaluación; si los ingresos no son suficientes, todos los contratistas deben cancelar;
El inquilino debe tener ingresos estables, fijos y suficientes provenientes del trabajo;
La vivienda no se alquilará a estudiantes;
No se proporcionan contratos amigos;
Las garantías (por ejemplo, de los padres) no son aceptadas;
La propiedad no puede ser alquilada como pied-à-terre;
El inquilino debe registrarse en la dirección ante el municipio;
Los inquilinos de Ymere que dejan una vivienda social tienen prioridad, excepto por un contrato temporal;
Una verificación de crédito es parte de nuestro procedimiento de asignación, al inscribirse, usted da automáticamente su consentimiento para esto;

Estacionamiento
Estacionamiento (compra obligatoria)
Los costos para el espacio de estacionamiento son € 25,- excluyendo costos de servicio € 8,-

*Este registro se ha elaborado con cuidado; la información que se proporciona es indicativa y no puede dar lugar a derechos.

Transfer

Precio de alquiler
€ 1.350 al mes
  • Excluye: Gastos de comunidad
Precio por m²
€ 16
Ofrecido desde
18-03-2026
Estado
Para alquilar
Disponible
En consulta
Contrato de alquiler
Período ilimitado
Depósito
€ 2.700
Estado de mantenimiento
Bueno

Superficie y capacidad

Espacio habitable
86 m²
Contenido
215 m³

Construcción

Tipo de casa
Piso
Tipo de casa
Entresuelo
Tipo de construcción
Edificio existente
Año de construcción
2010

Clasificación

Número de habitaciones
3
Número de dormitorios
2
Número de pisos
1
Número de plantas en el edificio
1

Espacio exterior

Balcón
Presente
Terraza en la azotea
No presente

Energía

Calificación energética
A+

Instalaciones de aparcamiento

Presente
No

Garaje

Presente
No
Reportar un problema