For rent: Flat Rubenslaan in Hazerswoude-Dorp
Show on map2391 HE (Hazerswoude-Dorp-West)
€959
per month
- 61 m²
- 4 rooms
Description
For the house, we only accept an income statement from the years 2024 or 2025. Your (joint) income will be checked and indexed towards 2026. Make sure your income is correctly recorded on ******. You can download an income statement via ******. If you do not have DigiD, call the Tax Office for assistance. The house is prioritized for households with an income of € 39,926 to € 56,910 for three-person households, and for those over retirement age, € 38,651 to € 56,910. It is a family home offered with a service contract, glass insurance, and solar panels, with a delivery date pending. Homeowners must provide proof of sale within 6 months after the rental contract starts.
Transfer
- Rental price
-
€ 959 per month
- Offered since
- 21-01-2026
- Status
- For rent
- Available
- Immediately
Area and capacity
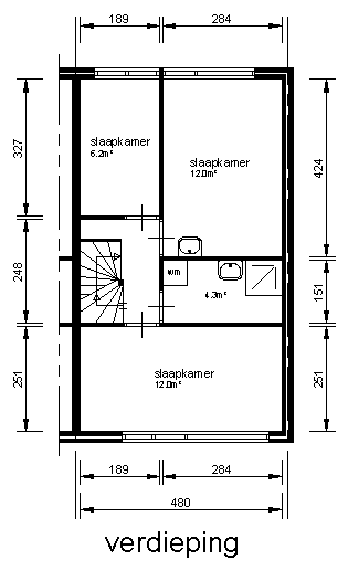
- Living area
- 61 m²
Construction
- Type of house
- Flat
- Type of house
- Gallery flat
- Type of construction
- Existing building
Classification
- Number of rooms
- 4
- Number of bedrooms
- 3
Outside space
- Roof terrace
- Not present