Contact with the rental provider

This property was found outside our own network. With the button below you will go directly to the provider.

New

For rent: Flat Operettelaan in Utrecht

Show on map
3543 BR (Terwijde-West)
€1,409 per month
  • 100 m²
  • 3 rooms
  • 2008

Exclusive for you

This property is exclusively available to you via your personal notification and will not appear in the search results.

Description

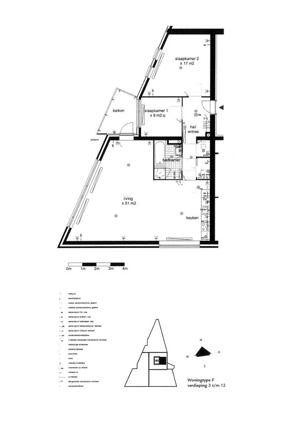
Near the center of Terwijde, this 3-room apartment on Operettelaan will be available from January 1, 2026. Covering 100 m² on the 11th floor, it features two bedrooms of 9 m² and 17 m². The north-west facing balcony and the private parking space are included in the monthly rent of €1,409.00, plus €85.00 service costs. The spacious living room with an open kitchen benefits from large windows allowing plenty of light. The kitchen comes with built-in appliances, and the luxurious bathroom includes both a bath and a shower. The location offers good access to public transport and is close to shops and schools. To schedule a viewing, you can register via the REBO Huurwoning website.

Transfer

Rental price
€ 1.409 per month
Offered since
16-12-2025
Status
For rent
Available
Immediately

Area and capacity

Living area
100 m²

Construction

Type of house
Flat
Type of house
Gallery flat
Type of construction
Existing building
Year of construction
2008

Classification

Number of rooms
3
Number of bedrooms
2
Number of bathrooms
1

Outside space

Roof terrace
Not present

Energy

Energy rating
A

Rental conditions

Target audience
Working
Report a problem with this property