- 85 m²
- 4 rooms
- Upholstered
Description
Curious about this property? The next viewing is on 22-12-2025 at 16:30. Sign up for the viewing of this property directly on the website of the Real Estate agent!
Requirements for this property:
- Not available for students
- Pets are not allowed
Spacious, bright and well-maintained three-bedroom apartment with a sunny south-facing balcony, located in a quiet and green residential area. This property offers the perfect combination of comfortable living and excellent accessibility. A bus stop is just a 2-minute walk away, while Utrecht Central Station can be reached within 7 minutes by tram or bus. By car, the A2 and A12 motorways are accessible within 5 minutes. Daily amenities such as a supermarket and local shops are around the corner, and a large shopping centre is within a 10-minute walk.
Ground floor:
Well-maintained central entrance with intercom system, mailboxes, access to the stairwell and a spacious private storage room.
4th floor:
The entrance and hallway, featuring a separate toilet, provide access to all rooms. The apartment offers three well-sized bedrooms, one of which has direct access to the pleasant south-facing balcony. The modern, fully tiled bathroom is equipped with a shower cabin, a large double washbasin, towel radiator and connections for a washing machine and dryer.
The spacious and bright living room is characterised by large windows that allow for plenty of natural light and provides access to the third bedroom, which is also perfectly suitable as a home office or guest room. The luxurious half open kitchen is fully equipped with modern appliances, including a cooker, extractor hood, combi oven, dishwasher, fridge-freezer combination and ample storage space.
This apartment is ideal for couples, small families and expats looking for a comfortable, move-in-ready home in a quiet location with all amenities and the city within easy reach.
No rights can be derived from the contents of this text.
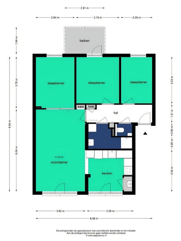
Livingroom (6.04 m x 3.62 m) 21.86 m2
Kitchen (3.38 m x 3.05 m) 10.31 m2
Bedroom 1 (3.78 m x 2.84 m) 10.74 m2
Bedroom 2 (3.15 m x 3.43 m) 10.80 m2
Bedroom 3 (3.43 m x 2.29 m) 7.85 m2
Bathroom (3.38 m x 1.70 m) 5.75 m2
Balcony (2.91 m x 1.94 m) 5.65 m2
Floor map
Specialities
- The rental price excludes gas, water, electricity, Tv, internet and municipal taxes and charges
- Pets are not allowed in the property
- Smoking is not allowed in the property
- Also suitable for sharing
- This property is not available for students!
- Central heating
- Double glazing
- Equipped with a laminate floor
Transfer
- Rental price
-
€ 2.500 per month
- Offered since
- 16-12-2025
- Status
- For rent
- Available
- Immediately
- Rental agreement
- Unlimited period
- Duration
- Minimum of 12 months
- Deposit
- € 5.000
- Interior
- Upholstered
Area and capacity
- Living area
- 85 m²
Construction
- Type of house
- Flat
- Type of house
- Gallery flat
- Type of construction
- Existing building
- Year of construction
- 1959
Classification
- Number of rooms
- 4
- Number of bedrooms
- 3
- Number of bathrooms
- 1
- Facilities
-
- Shower
- Storage space
- Toilet
Outside space
- Roof terrace
- Not present
Energy
- Energy rating
- B
Storage
- Shed/Storeroom
- Present
Parking facilities
- Present
- Yes
- Type of parking
- Paid
Rental conditions
- Smoking allowed
- No
- Pets allowed
- No
- Target audience
- Working