Contact with the rental provider

This property was found outside our own network. With the button below you will go directly to the provider.

à louer: Appartement Lange Houtstraat dans Den Haag

Show on map
2511 CV (Voorhout)
2 750 € par mois
  • 137 m²
  • 4 pièces
  • Non meublé

Description

  • À Louer; LANGE HOUTSTRAAT - La Haye

Ce bel appartement de deux chambres à coucher, caractéristique et spacieux, bénéficie d'un emplacement fantastique au cœur du centre-ville de La Haye ; rénové avec luxe, spacieux - au 1er étage.

L'appartement est équipé de tout le luxe actuel, avec une cuisine moderne et des appareils électroménagers ainsi qu'une salle de bain luxueuse. L'appartement se situe entre le Lange Voorhout et le Plein. Tous les lieux de divertissement et de shopping sont également accessibles à pied avec de nombreuses possibilités de stationnement autour de l'appartement.

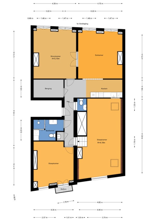
Disposition :

Entrée au rez-de-chaussée avec escalier menant au 1er étage - entrée de l'appartement, salon lumineux et spacieux en suite (environ 4,70 x 4,80 m) et (environ 5,20 x 4,60 m) avec deux cheminées, balcon français, cuisine entièrement ouverte nouvelle (environ 4,80 x 2,00 m) équipée d'un réfrigérateur/congélateur, gaz à 4 foyers, lave-vaisselle et four. Salle de rangement (environ 3,20 x 1,90 m), nouveau WC avec fontaine, nouvelle salle de bain avec douche, lavabo, WC et machine à laver et sèche-linge. Deux grandes chambres à l'arrière (environ 4,80 x 8,02 m) et (environ 4,10 x 4,30 m) avec balcon arrière.

Détails :

  • Disponible immédiatement
  • Loyer hors charges - internet et télévision
  • Dépôt ; 2 x loyer mensuel
  • L'appartement a une finition luxueuse et est équipé de détails originaux charmants et d'apparence !
  • Étiquette énergétique B
  • Beau parquet
  • Surface habitable d'environ 137 m²
  • Cuisine moderne ouverte avec appareils
  • Salle de bain moderne
  • 2 toilettes
  • 2 grandes chambres
  • Emplacement idéal en plein centre de La Haye
  • Animaux non admis
  • Pas de colocation autorisée

Cession

Prix de location
€ 2.750 par mois
En vente depuis
09-12-2025
Statut
À louer
Disponible
Immédiatement
Contrat de location
À durée indéterminée
Garantie
€ 5.500
Intérieur
Non meublé
État d'entretien
Bon/Bonne/Bien

Surface et contenu

Surface habitable
137 m²
Capacité
390 m³

Construction

Type de logement
Appartement
Type de logement
Étage supérieur, Appartement
Type de construction
Construction existante
Année de construction
1800
Emplacement
  • En centre-ville
  • Proche des transports publics

Répartition

Nombre de pièces
4
Nombre de chambres
2
Nombre de salles de bains
1
Nombre d'étages
1
Étage
2
Nombre d'étages dans l'immeuble
3
Installations
  • Douche
  • Toilette

Espace extérieur

Balcon
Présent
Jardin
Pas présent
Terrasse sur le toit
Pas présent

Énergie

Chaudière
HR-107 ketel (Propriété)
Classe énergétique
B

Espace de rangement

Cellier
Présent

Parking

Présent
Oui
Type de parking
Permis, licence, autorisation

Garage

Présent
Non

Conditions de location

Les animaux sont admis
Non
Signaler un problème