- 83 m²
- 3 habitaciones
- Semi amueblado
Descripción
EN ALQUILER EN ALMELO
Ubicada en el distrito "Beeklust", esta casa adosada 2-1 con jardín orientado al sur. Esta casa característica es ideal para hogares más pequeños y se encuentra en una hermosa ubicación cerca del centro comercial Van Gogh y del parque Beeklust.
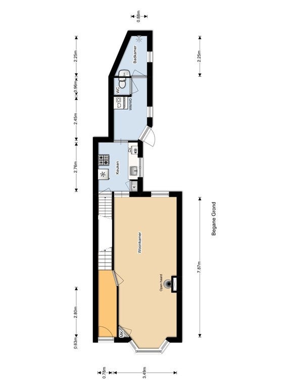
Planta baja:
Entrada, sala de estar con suelo de parqué, chimenea decorativa, acceso a la cocina con armario de bodega, pasillo trasero con conexiones para electrodomésticos, baño, baño equipado con ducha y lavabo.
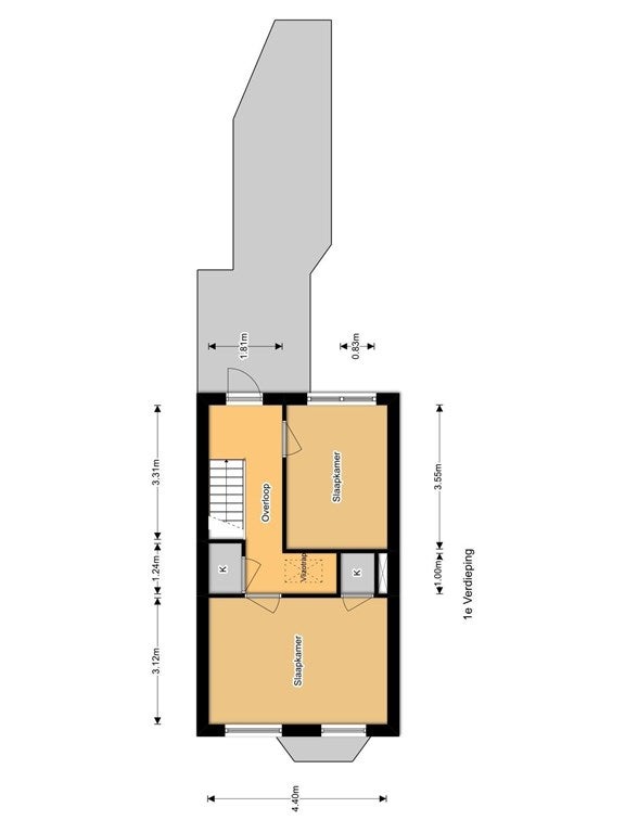
1ª Planta:
Distribuidor con acceso a 2 dormitorios.
2ª Planta:
Acceso al desván a través de una escalera de tijera.
Particularidades:
- Disponible a partir del 15 de enero de 2026 por tiempo indeterminado
- Precio del alquiler €1,400,- excl. g/w/e
- Depósito de 1 mes de alquiler
- Año de construcción aproximadamente 1938; Tamaño de la parcela 138m²
- Baño nuevo y cocina nueva
¿Interesado?
Llama al ****** o envía un correo a info@lenoblemakelaardij o ******
Este anuncio en Internet es solo para fines informativos y, por lo tanto, es completamente no vinculante. No se pueden derivar derechos de posibles inexactitudes.
Transfer
- Precio de alquiler
-
€ 1.400 al mes
- Ofrecido desde
- 13-01-2026
- Estado
- Para alquilar
- Disponible
- Inmediatamente
- Depósito
- € 750
- Interior
- Semi amueblado
- Estado de mantenimiento
- Bueno
Superficie y capacidad
- Espacio habitable
- 83 m²
- Tamaño
- 83 m²
- Contenido
- 83 m³
Construcción
- Tipo de casa
- Casa
- Tipo de casa
- Dúplex, Casa familiar
- Tipo de construcción
- Edificio existente
- Año de construcción
- 1900
- Ubicación
-
- en una zona residencial
- Cerca de un centro comercial
Clasificación
- Número de habitaciones
- 3
- Número de dormitorios
- 2
- Número de baños
- 1
- Número de pisos
- 3
Espacio exterior
- Balcón
- No presente
- Jardín
- Presente (63 m²)
- Descripción del jardín
- achtertuin
- Acceso trasero
- No presente
- Terraza en la azotea
- No presente
Energía
- Aislamiento
- Doble acristalamiento
- Agua caliente
- Caldera de calefacción central
- Calificación energética
- D