Contact with the rental provider

This property was found outside our own network. With the button below you will go directly to the provider.

als Option

Zur Miete: Etagenwohnung Vaartstraat 62 B in Amsterdam

Auf der Karte anzeigen
1075 RR (Schinkelbuurt)
2.500 € pro Monat
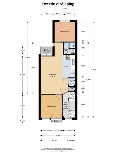
  • 56 m²
  • 3 Zimmer
  • Teilmöbliert oder möbliert

Beschreibung

Vaartstraat 62-B

Helles, möbliertes Apartment von 56m2 mit geräumigen Schlafzimmern und einem Balkon, gelegen in der ruhigen Vaartstraat (Schinkelbuurt), nahe dem Vondelpark.

Aufteilung:
Eingang zum Wohnzimmer mit Zugang zum Balkon. Offene Küche, ausgestattet mit Geschirrspüler und Ofen. Badezimmer mit ebenerdiger Dusche und Waschbecken, separates WC. Gleich große Schlafzimmer an der Vorder- und Rückseite der Wohnung.

Lage:
Die Vaartstraat im Süden Amsterdams ist eine ruhige Straße, die im Schinkelbuurt liegt. In diesem Viertel finden Sie viele gemütliche Restaurants und Cafés. Diese Straße ist sowohl mit dem Auto als auch mit öffentlichen Verkehrsmitteln gut erreichbar, und mit dem Fahrrad sind Sie in fünfzehn Minuten im Zentrum von Amsterdam. Der Vondelpark ist zu Fuß erreichbar.

Spezifikationen:

  • 2 Schlafzimmer;
  • Energielabel A;
  • möbliert;
  • Balkon;
  • Kaution 2 Monate;
  • Betriebskosten e20,-;
  • sofort verfügbar

Reaktionen:
Um einen Besichtigungstermin zu vereinbaren und/oder Fragen zu dieser Immobilie zu stellen, kontaktieren Sie bitte Horatio Makelaardij unter ****** oder ******

Übertragung

Mietpreis
€ 2.500 pro Monat
Angeboten seit
17-12-2025
Status
als Option
Verfügbar
In Absprache
Bürge
€ 5.000
Einrichtung
teilmöbliert oder möbliert
Zustand der Wartung
ausgezeichnet

Fläche und Inhalt

Wohnfläche
56 m²
Inhalt
170 m³

Bau

Immobilienart
Etagenwohnung
Haustyp
Obergeschosswohnung, Appartement
Art Gebäude
Bestandsgebäude
Gebäude & Baujahr
1913

Einteilung

Anzahl Zimmer
3
Anzahl Schlafzimmer
2
Bad
1
Anzahl Wohnebenen
1
Grundriss & Ausstattung
  • Kabelfernsehen
  • Internetanschluss
  • Mechanische Lüftung
  • Dusche
  • Toilette

Außenbereich

Balkon
Vorhanden
Dachterrasse
Nicht vorhanden

Energie

Isolierung
Doppelverglasung
Heizung
Heizkessel
Warmwasser
Heizkessel
Energieeffizienzklasse
A

Parkplätze

Vorhanden
Ja
Parkplatztyp
bezahlt
Ein Problem mit dieses Haus melden