Not available

The property you want to view is no longer available. You are now viewing the properties on offer in the same city.

Contact with the rental provider

This property was found outside our own network. With the button below you will go directly to the provider.

New

For rent: Flat Oudenoord in Utrecht

Show on map
3513 EV (Pijlsweerd-Zuid)
€1,415 per month
  • 57 m²
  • 2 rooms
  • 1984

Exclusive for you

This property is exclusively available to you via your personal notification and will not appear in the search results.

Description

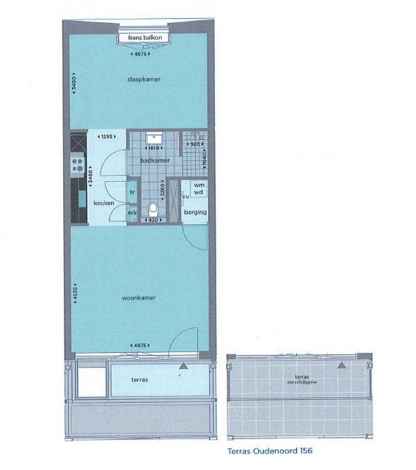
Available from January 1, 2026, this 1-bedroom, 2-room apartment at Oudenoord 252, Utrecht, is priced at € 1,415 per month, with an additional € 50 service fee. Located on the 5th floor, it covers 57 m² and features a southwest-facing terrace. The open kitchen boasts built-in appliances, while the bathroom includes a walk-in shower. The living room, with a glass wall and sliding door, opens to the terrace.
The location is ideal, just a short walk to the city center and well-connected by public transport and major roads. Nearby, you'll find shops, sports facilities, and green areas like the Vecht and the Noordse park.

Transfer

Rental price
€ 1.415 per month
Offered since
16-12-2025
Status
For rent
Available
Immediately

Area and capacity

Living area
57 m²

Construction

Type of house
Flat
Type of house
Gallery flat
Type of construction
Existing building
Year of construction
1984

Classification

Number of rooms
2
Number of bedrooms
1
Number of bathrooms
1

Outside space

Roof terrace
Not present

Energy

Energy rating
A

Rental conditions

Target audience
Working
Report a problem with this property