Advertisement archived

Para alquilar: Apartementos Kruidenhof en Leiden

Show on map
2315 KP (De Waard)
1.695 € al mes
  • 50 m²
  • 2 habitaciones
  • Semi amueblado

Descripción

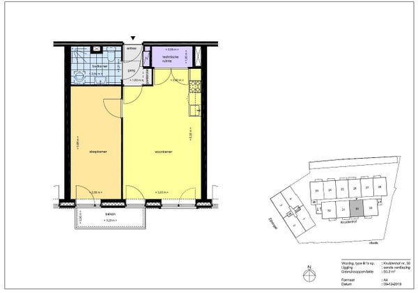
KRUIDENHOF 31, LEIDEN

LAS FOTOS SON UNA IMPRESIÓN Y PROVIENEN DE UN APARTAMENTO SIMILAR EN EL EDIFICIO!

Ubicado en el 1er piso del complejo ''DE RUYTER'', este apartamento amueblado de 2 habitaciones (1 dormitorio) se encuentra en la parte delantera del edificio B con una cocina de lujo, baño y su propio balcón orientado al sur.

Todos queremos esto, preferiblemente. Vivir de manera sostenible al aire libre y, sin embargo, cerca de la ciudad. Este deseo se hace realidad en "De Ruyter" en Leiden. Vivir en o fuera del canal, pero a menos de cinco minutos en bicicleta, así de cerca está el vibrante corazón de Leiden. Un complejo con 46 apartamentos en alquiler (2 y 3 habitaciones) en Leiden.

Las viviendas están distribuidas en 2 edificios (Edificio A y Edificio B). El Edificio A, en el lado de Zijlsingel, ha sido diseñado completamente en la atmósfera de las parcelas adyacentes. Como resultado, la experiencia del edificio es auténtica. Las paredes exteriores están construidas con un ladrillo que se integra en el paisaje urbano.

Distribución:
Entrada en el lado del edificio con un panel de timbre y buzones. Entrada en la planta baja. Entrada en el vestíbulo con acceso a las diferentes habitaciones. Sala de estar con lujosa cocina abierta equipada con lavavajillas, frigorífico, placa de inducción, campana extractora y microondas combinado. Baño de lujo con ducha a ras de suelo, lavabo, radiador de diseño, inodoro y conexión para lavadora. Acceso al dormitorio desde la sala de estar.

Características:
Los apartamentos se construyen con un estándar EPC de menos de 0,4. Con la ayuda de paneles solares y/o bomba de calor, logran una etiqueta energética de A+++. Esto significa una factura de energía baja de su empresa energética. Todos los apartamentos están envueltos con aislamiento, manteniendo el sonido y el calor/frío dentro de su propia vivienda. Todas las ventanas están dotadas de vidrios aislantes HR++. La calefacción por suelo radiante se encuentra en toda la vivienda. La construcción del edificio es muy sólida, con suelos de hormigón incluidos.

Nivel de entrega:

  • Suelo de PVC
  • Acabado de paredes con papel tapiz de renovación y pintado
  • Cocinas totalmente equipadas con lavavajillas, placa de inducción, microondas combinado, frigorífico
  • Baños con ducha y lavabo
  • Cortinas para ventanas
  • Iluminación de techo

Detalles:

  • Precio de alquiler de € 1.695,- excl. electricidad, agua y TV/Internet
  • Costos adicionales obligatorios de € 78,- al mes para gastos de servicio
  • Costos adicionales obligatorios de € 92,93 para contrato con InWarmte (estos costos se indexarán a partir del 1-1-2026)
  • Disponible a partir del 2 de enero de 2026

PROCEDIMIENTO DE SELECCIÓN:

Rotsvast determina en base a los correos electrónicos entrantes qué candidatos han respondido primero. Dada la gran cantidad estimada de respuestas, no todos los candidatos pueden ser invitados. Este correo electrónico debe contener al menos la siguiente información:

- Nombre del arrendatario(s)
- Explicación de la composición del grupo
- Ingreso bruto anual del arrendatario(s)

Las respuestas que no cumplan con estos requisitos no serán procesadas.

Invitaciones por orden de recepción de correos electrónicos para una ronda de visualización: completo=completo

Después de la visualización, se evaluará el ingreso y la fiabilidad en varios registros (públicos). El arrendatario debe superar esta selección de manera completa y exitosa, terminando con 5 estrellas, la mejor puntuación en nuestra herramienta de selectividad (Properize). La decisión de alquilar la propiedad a los candidatos corresponde completamente al propietario. Si varios candidatos pasan la selección con éxito, la elección se basará en el ingreso, la selección y la situación personal del arrendatario. Como arrendatario, tienes la oportunidad de explicar tu situación personal durante la selección.

Los candidatos que no obtengan la propiedad después de la selección tienen derecho a una explicación adicional y, por supuesto, pueden consultar el informe de selección.

ATENCIÓN: Rotsvast representa los intereses del propietario, quien tiene interés en arrendar a la fecha disponible. Con un proceso de selección completamente realizado, Rotsvast propondrá un expediente directamente al propietario. Si un expediente ha sido aceptado, los expedientes que lleguen después no se incluirán más en el proceso. Es responsabilidad de los arrendatarios candidatos presentar un expediente completo lo más pronto posible. Rotsvast no informará activamente a los arrendatarios sobre el progreso del proceso de selección en curso de otros candidatos arrendatarios. En un mercado de vivienda tenso, Rotsvast asume que los arrendatarios candidatos son conscientes de la importancia de actuar de manera oportuna.

Similar en los alrededores

Elisabeth Gasthuishof

2312WX Leiden (De Camp)
1.675 € por mes

Van Kleffensplantsoen

2253LG Voorschoten (Noord-Hofland)
1.650 € por mes

Artemisstraat

2321LA Leiden (Cronestein)
1.595 € por mes

Artemisstraat

2321LA Leiden (Cronestein)
1.625 € por mes

Artemisstraat

2321LA Leiden (Cronestein)
1.595 € por mes

Gaiastraat

2321LC Leiden (Cronestein)
1.595 € por mes

Eschertoren 3

2316ET Leiden (Groenoord)
1.694 € por mes

Gaiastraat

2321LC Leiden (Cronestein)
1.575 € por mes

Artemisstraat

2321LA Leiden (Cronestein)
1.595 € por mes

Artemisstraat

2321LA Leiden (Cronestein)
1.595 € por mes

Superficie y capacidad

Espacio habitable
50 m²
Contenido
137 m³

Construcción

Tipo de casa
Piso
Tipo de casa
Piso superior, Apartamento
Tipo de construcción
Edificio existente
Año de construcción
2020
Ubicación
  • en una zona residencial
  • Cerca del transporte público
  • Lugar protegido

Clasificación

Número de habitaciones
2
Número de dormitorios
1
Número de baños
1
Número de pisos
1
Planta
2
Número de plantas en el edificio
3
Instalaciones
  • TV por cable
  • Ascensor
  • Ducha

Espacio exterior

Balcón
Presente
Jardín
No presente
Terraza en la azotea
No presente

Energía

Aislamiento
Totalmente aislado
Calefacción
Bomba de calor
Calificación energética
A+++

Espacio de almacenamiento

Cobertizo/Almacén
No presente

Instalaciones de aparcamiento

Presente
Tipo de aparcamiento
Permiso