Contatta l’inserzionista

Questo immobile è stato trovato al di fuori della nostra rete. Tramite il pulsante qui sotto verrai reindirizzato direttamente al sito dell’inserzionista.

New

In affitto: Appartamento Herengracht 346 A in Amsterdam

Show on map
1016 CG (Grachtengordel-West)
8.500 € al mese
  • 172 m²
  • 6 stanze
  • Imbottita e ammobiliato

Descrizione

Questa casa di canale ristrutturata architettonicamente di circa 172 m² è distribuita tra il piano rialzato e il piano interrato e offre tre camere da letto e due bagni. La combinazione di un classico piano abitativo affacciato sul canale, con grandi finestre e soffitti alti, e un piano interrato progettato con influenze orientali sottili crea una casa rara con uno spazio distintivo. Situata sulla Herengracht, vicino alle Negen Straatjes.

Layout:

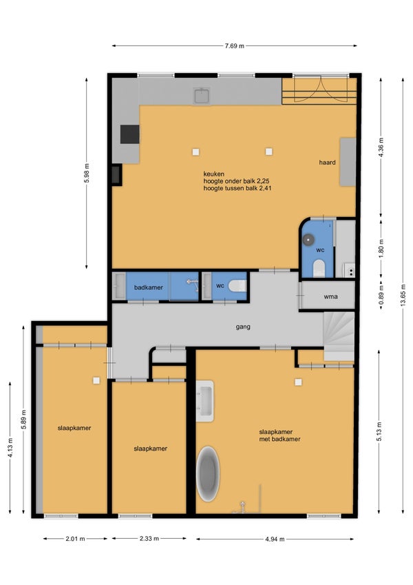
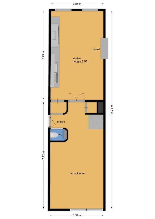
L'appartamento occupa il piano rialzato e il piano interrato di una casa di canale risalente al 1614, con un ingresso separato su entrambi i livelli.

All'ingresso al piano rialzato, il soggiorno si trova sul retro ed è dotato di una scaffalatura aperta su misura. Due porte doppie conducono alla spaziosa cucina abitabile nella parte anteriore, rifinita con dettagli arrotondati e un piano di lavoro in marmo. La cucina include un camino autentico e grandi finestre che si affacciano sulla Herengracht. L'intero piano è dotato di cornici decorative e ornamenti e rifinito con pavimentazione in legno.

Una scala conduce al piano interrato, dove sono stati preservati elementi originali come travi in legno e muri in mattoni a vista.

Nella parte posteriore del piano interrato ci sono tre camere da letto. La camera principale ha un bagno en-suite, mentre le altre due camere condividono un secondo bagno su questo piano.

Nella parte anteriore del piano interrato si trova un generoso secondo soggiorno con cucina a vista, un camino, un bagno separato e un'ingresso privato.

Caratteristiche principali:

• Superficie abitabile di circa 172 m² (secondo NEN2580);
• Appartamento distribuito tra piano rialzato e piano interrato;
• Tre camere da letto, due bagni e più bagni;
• Due ripostigli;
• Grandi finestre e soffitti alti;
• Completo e architettonicamente ristrutturato, completato nel 2023;
• Fondamenta rinnovate durante i lavori di ristrutturazione;
• Rara combinazione di una classica casa di canale con un piano interrato con influenze orientali;
• Vista sulla Herengracht;
• Situato su terreno di proprietà (quindi nessun affitto fondiario);
• Associazione di proprietari attiva, finanziariamente sana e gestita professionalmente (VvE);
• Le spese di gestione della VvE ammontano a circa €327 al mese;
• Trasferimento previo accordo reciproco.

Affitto:

• Completamente arredato e attrezzato;
• Disponibilità e periodo di affitto previo accordo reciproco.

Posizione:
Situata sulla Herengracht nel cuore del cinturone dei canali di Amsterdam, a breve distanza dalle famose Negen Straatjes. La zona circostante offre una vasta selezione di boutique, gallerie, ristoranti e caffè. Anche luoghi culturali come il Rijksmuseum, la Casa di Anna Frank e la Jordaan sono nelle vicinanze. Grazie alla sua posizione centrale, i mezzi pubblici e le strade principali sono facilmente raggiungibili.

Trasferimento

Prezzo di affitto
€ 8.500 al mese
Prezzo al m²
€ 49
In offerta dal
19-03-2026
Stato
In affitto
Disponibile
In consultazione
Particolarità
Edificio tutelato
Interni
imbottita e ammobiliato
Stato di manutenzione
Eccellente

Area e capacità

Zona giorno
172 m²
Contenuto
622 m³

Costruzione

Tipo di abitazione
Appartamento
Tipo di abitazione
Doppio piano terra, Appartamento
Tipo di struttura
Edificio esistente
Anno di costruzione
1614
Posizione
  • Su un corso d’acqua
  • Vicino a un corso d’acqua
  • In centro storico
  • Vista non ostruita

Classificazione

Numero di stanze
6
Numero di camere da letto
3
Numero di bagni
2
Numero di piani
2
Piano
1
Infrastrutture
  • Vasca da bagno
  • Doccia
  • Toilette
  • Lavanderia

Spazio esterno

Balcone
Non presente
Giardino
Non presente
Terrazza sul tetto
Non presente

Spazio adibito a magazzino

Magazzino
Presente
Descrizione
Inpandig

Strutture di parcheggio

Presente
Tipo di parcheggio
Pagato

Garage

Presente
No
Segnala un problema con questa proprietà